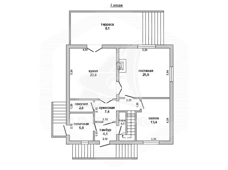
О доме
Площадь общая
177.4 м2
Площадь дома
177.4 м2
Участок
21.43 сотка
В продаже
Целый дом
Год постройки
2023
Материал стен
Блоки
Материал крыши
Металлочерепица
Удобства
Гараж
Коммуникации
Водоснабжение: Скважина
Газ: В поселке
Электричество: Есть
Описание
Усюкевич Денис Владимирович — Агент
9 лет на сайте
Показать почту
Пожаловаться на объявление
Агентство недвижимости
АЛЬТЕРНАТИВА Брест
УНП: 291427570 Лицензия: от 02.02.2016 № 21
Договор №: 18.04.2024 №864/1












