Подать БЕСПЛАТНО

Продать 1-этажный дом в Сутине, Минская область ул. Центральная, 8950USD, код 649452

Минская область, д. Сутин, ул. Центральная
Показать на карте
Пуховичское направление
97 км от МКАД
29 599 р.
Код объекта: 649452
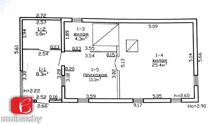
40.8 м2
20.45 соток
Обновлено: 22.05.2025
29 599 р.
Предложить свою цену

О доме

Площадь общая
40.8 м2
Площадь дома
40.8 м2
Участок
20.45 соток
В продаже
Целый дом
Готовность дома, %
100
Год постройки
2000
Материал стен
сруб

Коммуникации

Отопление: печное
Водоснабжение: Колодец
Газ: В посёлке
Электричество: Нет
Канализация: с/у на улице

Описание

Продаётся деревянный дом (сруб, обшитый досками), пригодный для круглогодичного проживания и отдыха в д. Сутин.
Пуховичское направление. Пуховичский район. 97.2 км. от МКАД. 28 км от Марьиной Горки и 8 км от пгт. Талька.
Площади: 40,8/29,7/11,1 м2.
Веранда, две комнаты, кухня, кладовка.
Электричество. Газ – баллон. Газовая плита. Окна – ПВХ. Пол - деревянный (доска окрашена). Стены - дсп, обои. Потолок - обшит двп, окрашен. Межкомнатные дери - деревянные.
Вода - колодец на участке. Отопление печное. Фундамент – ленточный, заливной. Крыша – двускатная (шифер).
Хоз. постройки. Туалет на улице.
Участок 20,45 сотки, огорожен. Плодовые деревья.
Автолавка. Тихое живописное место. Участок расположен в шаговой доступности от леса и речки.
Хорошее транспортное сообщение. Эл/поезд от ст. Талька до г. Минска, г. Марьина Горка и г. Осиповичи, маршрутка с Тальки до д. Сутин, автобус с Тальки и с Марьиной Горки до д. Сутин. Чистая продажа.


УП "Мольнар", УНП 101107535, лицензия №02240/11 от 17.02.2005г., договор на оказание риэлтерских услуг №265/1 от 06.05.2025 г.
агент
9 лет на сайте
Показать почту
Пожаловаться на объявление
Агентство недвижимости
Мольнар

Местоположение

Минская область, д. Сутин, ул. Центральная
Опубликовано: 22.05.2025