Подать БЕСПЛАТНО

Продать 1-этажный дом в Телепашня, Минская область , 95000USD, код 658410

Минская область, ст. Телепашня,
Показать на карте
Логойское направление
21.58 км от МКАД
268 898 р.
Код объекта: 658410
4 комнаты
97.9 м2
10 соток
Обновлено: 14.04.2026
268 898 р.
Предложить свою цену

О доме

Площадь общая
97.9 м2
Площадь дома
97.9 м2
Участок
10 соток
В продаже
Целый дом
Готовность дома, %
100
Год постройки
2024
Материал стен
блоки

Удобства

Видеонаблюдение
Интернет
Лес
Баня
Водоем
Магазин

Коммуникации

Отопление: газовое
Водоснабжение: Центральное
Газ: В посёлке
Электричество: Есть
Канализация: Есть

Описание

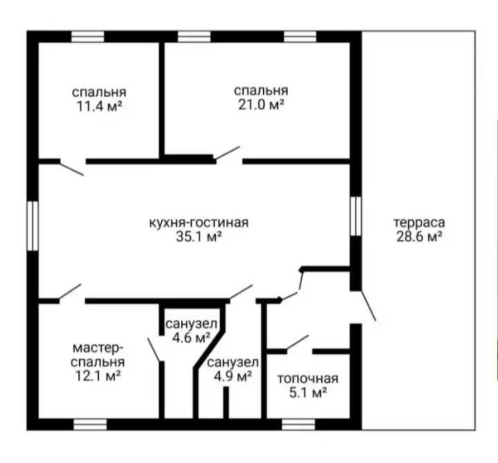
Дом для круглогодичного проживания, под чистовую отделку в элитном садовом товариществе Телепашня, Логойский р-н, Минская обл, Мядельское направление 19 км от МКАД Логойское направление 20 км от МКАД. Площадь общая 97,9 кв.м, жилая 82,3 кв.м в том числе студия-гостиная с кухней 35,1 кв.м. Основной санузел 4,9 кв.м с огромным душем. 3 спальни, в том числе мастер спальня 12,1 кв.м со вторым санузлом 4,6 м.кв. с установленной ванной и умывальником. Топочная-постирочная 6,1 м.кв. Газ и оптоволокно у границы участка! Терраса 13х2,2 метра. Дружелюбные успешные соседи, приятная атмосфера. Дом на возвышенности, атмосферные осадки не беспокоят. Дороги зимой регулярно чистят. Фундамент каскадный ленточный шириной 400 мм, монолитная плита 200 мм. Стены: газосиликатные блоки 300 мм + утеплитель 50 мм, декоративная штукатурка под кирпичик. Окна ПВХ профиль, двухкамерные стеклопакеты Рехау. Входная дверь металлическая утепленнач. Водяные теплые полы по периметру всего дома, заполнены теплоносителем, опрессованы. Перекрытия и стропильная система брус 50х200мм, огнебиозащита. Утепление минеральная вата по перекрытиям шириной 200 мм, гидроизоляция, пароизоляция. Крыша: гибкая черепица. Водоснабжение: центральное круглогодичное. Электропроводка – медь, полностью разведена по дому. Выделено 15 кВт. Канализация местная 3 колодца по 2 кольца 1.5 метра в диаметре Участок 10 соток высажены яблони, смородина, черешня, клубника. На участке есть хозблок 6х10 метра, вода и электричество заведены. Установлены бетонные столбы для забора, куплен металопрофиль, сетка-рабица и система откатных ворот. Закрытый въезд на полностью огороженную территорию товарищества через шлагбаум, круглосуточное видеонаблюдение. В шаговой доступности находится остановка общественного транспорта и круглогодичный магазин. В непосредственной близости расположены места для отдыха, водохранилище и река Вяча. Пляж с оборудованными местами для отдыха и мангалами — в 3 км. Рядом лесной массив. Агентам звонить при наличии реального покупателя

Павел Собственник
7 лет на сайте
Пожаловаться на объявление

Местоположение

Минская область, ст. Телепашня,
Опубликовано: 14.04.2026