Подать БЕСПЛАТНО

Продать 1-этажный коттедж в Толкачевщиной, Минская область ул. Центральная, д. 10, 104000USD, код 654959

Минская область, д. Толкачевщина, ул. Центральная, 10
Показать на карте
Слуцкое направление
30 км от МКАД
305 146 р.
Код объекта: 654959
127.5 м2
19.6 соток
Обновлено: 14.11.2025
305 146 р.
Предложить свою цену

О доме

Площадь общая
127.5 м2
Площадь дома
127.5 м2
Участок
19.6 соток
В продаже
Целый дом
Готовность дома, %
90
Год постройки
2020
Материал стен
Блоки

Коммуникации

Водоснабжение: Центральное
Газ: В доме
Электричество: Есть
Канализация: Есть

Описание

  Продается новый коттедж в деревне Толкачевщина, Добрыневского сельсовета, Дзержинского района.

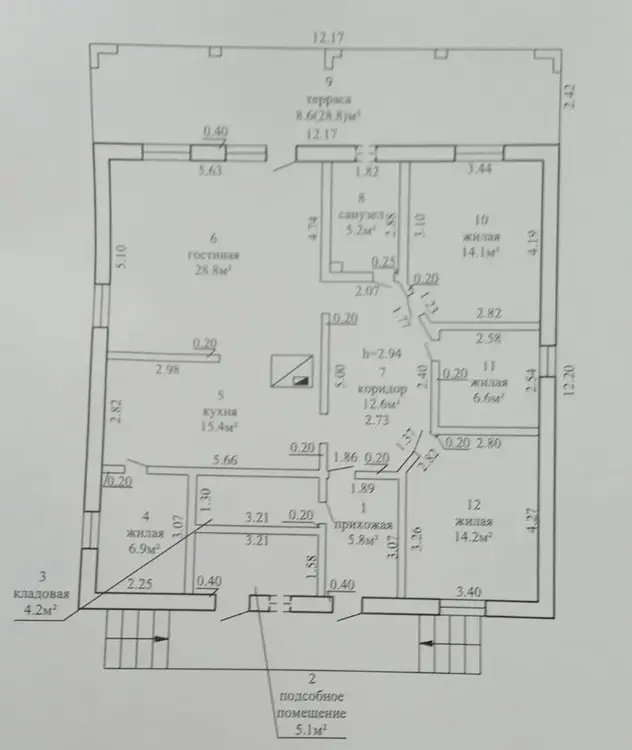
Размер дома: 12,2 x 14,65 м. Под отделку. 

Расположен в тихом, живописном месте всего в 30 км от Минска по Слуцкой трассе и в 34 км по Брестской.

  Описание дома:

- Построен из высококачественных материалов с учетом всех строительных норм и технологий.

- Стены выполнены из силикатных блоков толщиной 30 см, утепленных дополнительно 10 см пенопластом.

- Фундамент – плитно-свайный, состоящий из 76 свай и ребристой плиты толщиной 25 см.

- Кровля – натуральная керамическая черепица.

- Перекрытия – монолитная плита и деревянный брус.

- В доме установлена новая большая кирпичная печь со стеклянной дверью топки.

- Внутри оштукатурен примерно на 90%.

- Общая площадь дома – 127,5 м2, без учета капитального мансардного этажа, который также по площади равен дому и может служить для расширения жилых помещений.

  Коммуникации:

- Газ подведен к дому.

- Централизованное водоснабжение.

- Канализация – септики.

- Рядом с участком — колонка с водой.

  Планировка:

- Первый этаж включает: топочную, прихожую, кухню, пять жилых комнат и террасу размером 2,5 x 12,2 м.

- Мансардный этаж — просторное, огромное помещение по всему периметру дома, с возможностью разделения на несколько больших комнат.

  Участок и вспомогательные строения:

- Участок площадью 19,5 соток — ровный, ухоженный.

- На участке расположено капитальное строение площадью 60,5 м2, в котором находятся:

  - отличная баня с гостевой комнатой;

  - гараж.

  Инфраструктура и окрестности:

- Участок находится на центральной улице деревни.

- Хорошие соседи.

- Вблизи: магазин — 500 м, сельская больница — 200 м.

- Остановка общественного транспорта – 200 м. (Сообщение с Минском – маршрутки каждые пол часа, автобус – три раза в день.)

- Рядом река, крупное рыбное озеро Даниловичи в 1 км, лесной массив.

- В 10 км — парк туризма и отдыха «Станьково» с зоопарком.

- Грунт на участке — крупный песок (бывшее поле), что обеспечивает сухость земли.

- Есть молодой сад.

  Итог:

Наш дом — отличный выбор для тех, кто хочет наслаждаться природой и одновременно сохранять близость к городским возможностям.

ООО «ЭТАЖИ юнайтед»
УНП: 193673318
Договор 2347/1 от 31.10.2025
Лицензия на оказание риэлтерских услуг №02240/460 МЮ РБ от 03.04.2023

Специалист по недвижимостиАгент
2 года на сайте
Показать почту
Пожаловаться на объявление
Агентство недвижимости
ООО «ЭТАЖИ юнайтед»

Местоположение

Минская область, д. Толкачевщина, ул. Центральная, 10
Опубликовано: 14.11.2025