Выберите валюту для сайта:
BYN
Подать БЕСПЛАТНО

Продажа торгового помещения на ул. Энгельса, д. 5 в Толочине, 630000USD, код 998134

545.2 м2
1 798 272 р.
Торговый объект
Город Толочин
Адрес ул. Энгельса, д. 5
Год постройки 2020 г.
Площадь 545.2 м2

Описание

Предлагается в продажу / аренду здание специализированной розничной торговли площадью 545,2 м2 в центре города.


Это ваш шанс навсегда закрепиться в локации с гарантированным успехом, где каждый элемент
инфраструктуры работает на Вашу прибыль.
Почему Ваш бизнес здесь будет процветать:
 * Локация, обреченная на успех: Вы находитесь в сердце города. Это обеспечивает синергию и
колоссальный, непрерывный поток самой платежеспособной аудитории.
 * Идеальное пространство для аренды Ваших арендаторов.


 *Возможность открытия медицинского центра, в чём город очень нуждается.
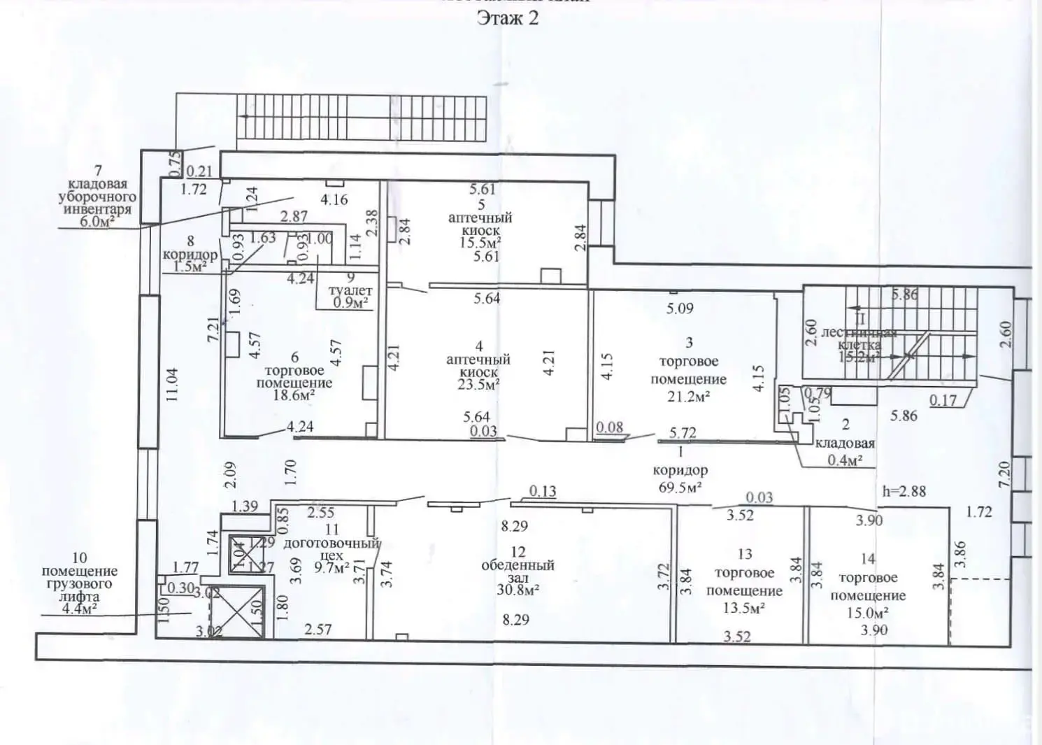
Площадь 1 этажа- 142,5 м 2  с открытой планировкой, подсобными помещениями, сан. узлом, своей отдельной рампой, позволит реализовать любую концепцию:
  Бутик одежды или обуви
  Шоу-рум дизайнерских товаров
  Салон красоты или барбершоп премиум-класса
  Стильная кофейня или винный бар
  Магазин оптики или ювелирный салон


2 этаж- 5 торговых помещений, 1- обеденный зал (помещение под общепит), с отдельным грузовым подъемником со своей рампы.


 * Финансовая выгода владения: «Хватит платить аренду!» Каждый месяц Вы будете инвестировать в собственный актив, капитализируя свой бизнес и защищая его от инфляционных рисков.


Сделайте стратегическую инвестицию в будущее Вашего бренда. Станьте частью самого динамичного и успешного коммерческого кластера в Толочине.
 
Вся подробная информация по продаже и аренде по телефону.

  • Номер договора 112/5 от 22.09.2025г.
  • ООО "Твой Маёнтак" УНП 192707758 Лицензия: 02240/319 от 21.10.2016 г., выдана Министерством юстиции РБ
Код объекта: 998134 Договор с собственником: 112/5 от 2025-09-22 Опубликовано: 26.09.2025 Обновлено: 30.01.2026
0 / 1 / 3
Динамика цен за кв. метрДинамика цен

Вы просматривали

Торговый объект, 545.2 м2
Толочин, ул. Энгельса, д. 5
1 798 272 р.
3 298 р. за м2
Твой Маёнтак
Пожалуйста, скажите, что нашли этот объект на Domovita.by
+
Фильтр сохранен