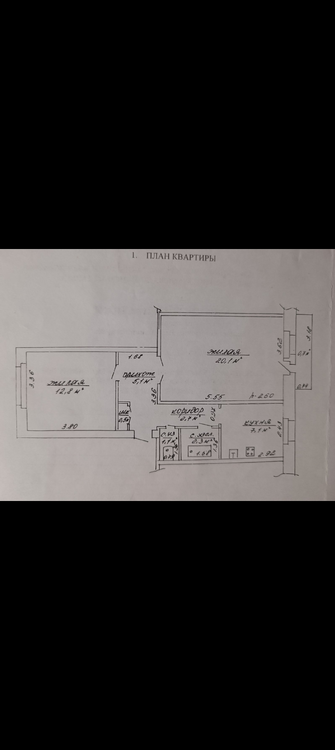
О квартире
О доме
Описание
Продаётся теплая и уютная квартира в живописном месте Крупского района, Минской области.
Квартира является в собственности, долгов и ареста на жилье нет.Начали делать ремонт, чтобы жить семьёй, но нам предложили строительство в другом месте.
Краткое описание
Кухня:
Стены оштукатурины и полностью готовы для поклейки обоев. Холодильник, газовая плита, умывальник, кухонные шкафчики.Пол деревянный, начали подбивать ДВП для укладки линолеума. На потолке металлическая конструкция для подвесного потолка.
Ванная комната
Стены оштукатурины, установленная ванна, умывальник, стиральная машина. Выведена вентиляция. На полу плитка. Двери нового образца.
Туалетная комната;
На полу плитка, старого образца, но крепкая. (У нас закуплена новая для укладки), крепкий унитаз нового образца. Двери нового образца.
Коридор ведущий на кухню:
Стены оштукатурины и готовы к поклейке обоев, пол подбит ДВП под линолеум.
Входной коридор:
Оштукатурины стены и подбит пол.
Жилая комната ( спальня)
Установлен новый и современный включатель света с регулировкой яркости. На полу новый, плотный и теплый линолеум премиум качества. Стены оклеены новыми, красивыми обоями.Окно ПВХ.
Жилая комната (зал)
На полу дорогостоящий ламинат в окантовке красивого темного плинтуса.
Стены поклеяны новыми обоями премиум качества с современным дизайном. Новая радиаторная батарея. Окно-дверь ПВХ с выходом на балкон. Балкон укреплен и после капитального ремонта.
Квартира расположена на 3 этаже/трёхэтажного дома. Дом, крыша, балкон прошли копитальный ремонт в 2024 году. Вход в подъезд осуществляется из металлической двери оборудованной кодовым замком. Подъезд к дому осуществляется по асфальту до самого подъезда. Квартира находится в самом центре агрогородка. Рядом в минутной доступности остановочный пункт ,продуктовый магазин, отделение почты, сельисполком, дом культуры, Вайлдберриз, детский сад, средняя школа, врачебная амбулатория, аптека, православный храм пресвятой Богородицы. В 2023 году введена в эксплуатацию новая котельная.
Работающим людям есть места для работы.
Для любителей охоты - лесоохотничье хозяйство.
Грибные и ягодные места.
Рассмотрим посуточную аренду.
К квартире прилагается подвал, колясочная, сарай.
Звоните, всё покажем и расскажем












