Подать БЕСПЛАТНО

Продажа 4-комнатной квартиры в Видомле,

Брестская область, аг. Видомля,
Показать на карте
92 373 р.
Цена за м2: 741 р.
Код объекта: 1031862
4 комнаты
105.5 м2
1 этаж из 2
Обновлено: 20.07.2024
92 373 р.
Цена за м2: 741 р.
Предложить свою цену

О квартире

Площадь
105.5 м2
общая
48.7 м2
жилая
Отдельных комнат
4 комнаты
Санузел
-
Балкон
Лоджия
Тип ремонта
-

О доме

Этаж
1 из 2
Материал стен
Панельный

Описание

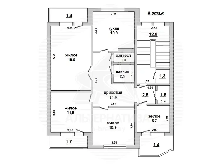
Квартира в блокированном доме в Каменецком р-не. 2 этажа. Общ.СНБ - 160,0 кв.м, общ.- 105,5 кв.м, жил.- 48,7 кв.м, 4 комнаты, высота потолка - 2,70 м. Стены: материал - сэндвич-панель; отделка фасада - оштукатурен. Кровля: гидроизол. Фундамент: ленточный монолитный; материал - бетон Коммуникации: отопление - газовый котел, газ - централизованный (в доме), водоснабжение - централизованный водопровод, электричество - централизованное, канализация - централизованная. Хоз.постройки: сарай. Участок - 0,0736 га (737/1258 доли от 0,1258 га) + 0,0172 га (173/295 доли от 0,0295 га). Лот - 941534. Смотреть подробнее.

Здесь можно подписаться на рассылку новых предложений и снижения цен по КВАРТИРАМ в Брестском регионе прямо Вам в Viber или Telegram ЗАО «АЛЬТЕРНАТИВА Брест». УНП 291427570 Лицензия № 02240/303 от 02.02.2016г. Договор номер 1534/1 от 16.07.2024
Царук Сергей ВасильевичАгент
9 лет на сайте
Условия сделки:Чистая продажа
Показать почту
Пожаловаться на объявление
Агентство недвижимости
АЛЬТЕРНАТИВА Брест

Местоположение

Брестская область, аг. Видомля,
Опубликовано: 20.07.2024

Возможно, вам будет интересно