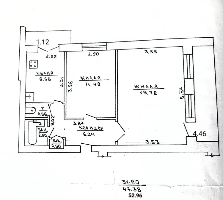
О квартире
Площадь
52.96 м2
общая
31.2 м2
жилая
6.68 м2
кухня
Санузел
раздельный
Балкон
Балкон
Тип ремонта
Косметический
О доме
Этаж
5 из 9
Материал стен
Кирпичный
Год постройки
1978
Описание
Любимый город — Агент
4 года на сайте
Условия сделки:Чистая продажа
Показать почту
Пожаловаться на объявление
Агентство недвижимости
"Любимый город"
УНП: 391907782 Лицензия: от 16 июля 2019 г
Договор №: #3/3 от 02.03.2026





































