Подать БЕСПЛАТНО

Купить 3-комнатную квартиру в Витебске, ул. Чкалова, д. 32/4

г. Витебск, ул. Чкалова, 32/4
Показать на карте
Первомайский район
162 355 р.
Цена за м2: 2 288 р.
Код объекта: 1232193
3 комнаты
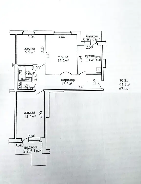
67.1 м2
3 этаж из 9
Обновлено: 01.03.2026
162 355 р.
Цена за м2: 2 288 р.
Предложить свою цену

О квартире

Площадь
67.1 м2
общая
39.3 м2
жилая
8.1 м2
кухня
Санузел
раздельный
Балкон
Балкон

О доме

Этаж
3 из 9
Материал стен
Панельный
Год постройки
1983

Описание

Продается трехкомнатная квартира по адресу: ул. Чкалова. Квартира расположена на 3  этаже 9-этажного панельного дома, построенного в 1983 году. Общая площадь квартиры 67,1 кв.м., жилая – 39,3 кв.м., кухня – 8,1 кв.м. Санузел раздельный. Два балкона. Квартира требует ремонта. Дом -трехподъездный. Есть парковка.  Рядом с домом гимназия №8, детский садик, ТЦ Трио, южный рынок  в шаговой доступности гимназия №7, парк, ледовый дворец. Отличный вариант для тех, кто ищет просторную квартиру в развитом районе!  Возможен торг. По всем вопросам и для организации просмотра — просьба обращаться по телефону.


Договор № 47/5 от 27.02.2026 г. ООО «Агентство Уют и К». УНП 391850235. Лицензия от 04 апреля 2017 г., выдана бессрочно Министерством юстиции Республики Беларусь и зарегистрирована в едином реестре лицензий за № 34200000021798 на право осуществления деятельности по оказанию риэлтерских услуг.

АнжеликаАгент
9 лет на сайте
Условия сделки:продажа
Показать почту
Пожаловаться на объявление
Агентство недвижимости
Уют и К

Местоположение

г. Витебск, ул. Чкалова, 32/4
Первомайский район
Опубликовано: 01.03.2026

Возможно, вам будет интересно

Похожие объекты

На этой улицеВ этом районе
132 540 р.
Цена за м2: 2 410 р.
Первомайский район, ул. Чкалова
2-комн. кв
55
34
11 м2
9 этаж из 12
162 355 р.
Цена за м2: 2 798 р.
Первомайский район, ул. Чкалова
2-комн. кв
58
35
12 м2
2 этаж из 9
201 р.
Цена за м2: 2 332 р.
Первомайский район, ул. Чкалова
4-комн. кв
86
54
9 м2
5 этаж из 10
165 306 р.
Цена за м2: 1 938 р.
Первомайский район, пр-т Победы
4-комн. кв
86.3
51.2
8.1 м2
5 этаж из 5
191 874 р.
Цена за м2: 3 307 р.
Первомайский район, пр-т Черняховского
2-комн. кв
62.4
33
11.9 м2
5 этаж из 10
191 874 р.
Цена за м2: 3 399 р.
Первомайский район, пр-т Московский
3-комн. кв
60.8
39.8
8.1 м2
3 этаж из 5