Выберите валюту для сайта:
BYN
Подать БЕСПЛАТНО

Купить офис на пр-т Куйбышева, д. 28/1 в Витебске, 155000USD, код 8828

183.5 м2 Октябрьский район / Песковатик
456 666 р.
450 849 р.
Офис
Город Витебск
Район Октябрьский район
Микрорайон Песковатик
Адрес пр-т Куйбышева, д. 28/1
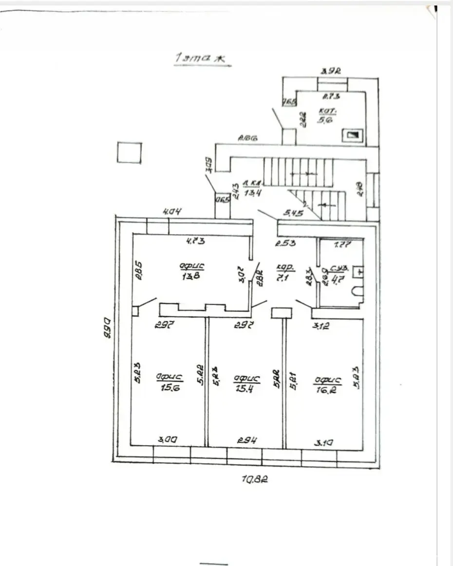
Площадь 183.5 м2

Описание

Продается офисное здание общей площадью 183.6 кв.м, расположенное в сердце Витебска. Это идеальное предложение для бизнеса, стремящегося к развитию и расширению.

Ключевые характеристики:

• Площадь: 183.6 кв.м

• Расположение: Центр города, с удобным доступом к транспортным артериям и инфраструктуре.

• Тип здания: Современное, с качественной отделкой и продуманной планировкой.

• Этажность: Одно или два этажа (уточнить).

• Офисные помещения: Просторные кабинеты, конференц-зал, зона для отдыха, кухня.

• Коммуникации: Все необходимые коммуникации (электричество, водоснабжение, отопление, интернет).

• Парковка: Наличие парковочных мест для сотрудников и клиентов.

Преимущества:

• Удобное расположение в деловом центре города, что обеспечивает высокий трафик клиентов.

• Возможность гибкой планировки под нужды нового владельца.

• Близость к ключевым инфраструктурным объектам: банкам, ресторанам, магазинам и общественному транспорту.

• Отличная инвестиционная привлекательность — здание может быть использовано как для собственных нужд, так и для аренды.

Не упустите возможность приобрести это уникальное предложение!

Для получения дополнительной информации и организации просмотра, пожалуйста, свяжитесь с нами.

Код объекта: 8828 Договор с собственником: 9/2 от 2025-05-26 Опубликовано: 11.06.2025 Обновлено: 27.11.2025
Динамика цен за кв. метрДинамика цен
Похожие объекты
Адрес
Комнат
Площадь
Этаж
Цена за м2
Цена
67.4 м2
1 из 1
1 558 р. за м2
232 м2
1 из
752 р. за м2
10-комнатная
280.8 м2
1 из 1
465 р. за м2

Вы просматривали

450 849 р. 2 457 р. за м2
Октябрьский р-н
Офис, 183.5 м2
Витебск, пр-т Куйбышева, д. 28/1
450 849 р.
2 457 р. за м2
Михаил
Пожалуйста, скажите, что нашли этот объект на Domovita.by
+
Фильтр сохранен