Выберите валюту для сайта:
BYN
Подать БЕСПЛАТНО

Снять торговую точку на пр-т Строителей, д. 8/3 в Витебске, 4406BYN, код 967179

163.2 м2 1 этаж из 11 Первомайский район / Юг
4 406 р./мес.
Торговый объект
Город Витебск
Район Первомайский район
Микрорайон Юг
Адрес пр-т Строителей, д. 8/3
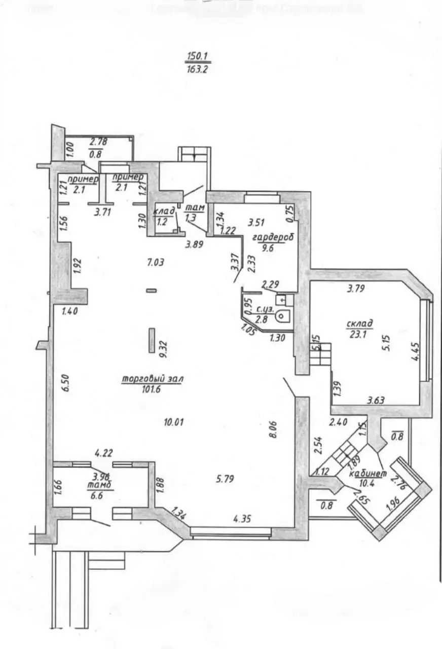
Площадь 163.2 м2
Этаж 1

Описание

Аренда торгового помещения, по адресу: пр-т Строителей. Общая площадь  - 163,2 кв.м., расположено на первом этаже одиннадцатиэтажного блочного жилого дома, построенного в 2005 году. Высота потолков — 2,5 м. В помещении есть санузел. Загрузка товара осуществляется со двора, что удобно для поставок и вывоза. Это универсальное пространство подходит для различных видов деятельности. Расположено в месте с высоким пешеходным трафиком, рядом находится большая парковка и остановка общественного транспорта, что обеспечивает удобство для клиентов.


Договор № 4/2а от 22.05.2025г. ООО «Агентство недвижимости УЮТ».  УНП 391351540. Лицензия № 02240/199 от 15.10.2009 на право осуществления деятельности по оказанию  риэлтерских услуг.

Код объекта: 967179 Договор с собственником: 4/2а от 2025-05-22 Опубликовано: 29.05.2025 Обновлено: 29.11.2025
0 / 0 / 5
Динамика цен за кв. метрДинамика цен

Вы просматривали

9 000 р./мес. 26 р. за м2
Ленинский р-н
4 406 р./мес. 27 р. за м2
Первомайский р-н
Торговый объект, 163.2 м2
Витебск, пр-т Строителей, д. 8/3
4 406 р./мес.
27 р. за м2
УЮТ
Пожалуйста, скажите, что нашли этот объект на Domovita.by
+
Фильтр сохранен