Выберите валюту для сайта:
BYN
Подать БЕСПЛАТНО

Снять торговую точку на ул. Гагарина, д. 7 в Витебске, 902USD, код 967512

225.6 м2 Октябрьский район / Песковатик
3 330 р./мес.
2 663 р./мес.
Торговый объект
Город Витебск
Район Октябрьский район
Микрорайон Песковатик
Адрес ул. Гагарина, д. 7
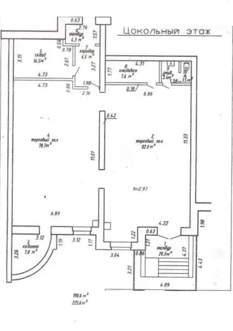
Площадь 225.6 м2

Описание

Сдается в аренду торговое помещение по адресу: ул. Гагарина. Общая площадь — 225,6 кв.м., состоит из двух раздельных помещений. Расположено на цокольном этаже жилого дома 2004 года постройки. Все коммуникации. Высота потолка — 2,97 м. Есть возможность загрузки со стороны двора, а также большая парковка. Помещение находится в районе с высоким пешеходным трафиком, рядом расположена остановка общественного транспорта. Подходит для различных видов деятельности — торговля, офисы, услуги и др. Отличная коммерческая локация! Звоните для получения дополнительной информации или организации просмотра! Цена аренды с НДС.


Договор № 14/4а от 04.08.2025 г. ООО «Агентство Уют и К». УНП 391850235. Лицензия от 04 апреля 2017 г., выдана бессрочно Министерством юстиции Республики Беларусь и зарегистрирована в едином реестре лицензий за № 34200000021798 на право осуществления деятельности по оказанию риэлтерских услуг.

Код объекта: 967512 Договор с собственником: 14/4а от 2025-08-04 Опубликовано: 21.08.2025 Обновлено: 06.03.2026
0 / 0 / 6
Динамика цен за кв. метрДинамика цен

Вы просматривали

2 663 р./мес. 12 р. за м2
Октябрьский р-н
Торговый объект, 225.6 м2
Витебск, ул. Гагарина, д. 7
2 663 р./мес.
12 р. за м2
Уютик
Пожалуйста, скажите, что нашли этот объект на Domovita.by
+
Фильтр сохранен