Выберите валюту для сайта:
BYN
Подать БЕСПЛАТНО

Продажа торговой точки на ул. Гагарина, д. 7 в Витебске, 189000USD, код 998043

225.6 м2 Октябрьский район / Песковатик
576 244 р.
547 287 р.
Торговый объект
Город Витебск
Район Октябрьский район
Микрорайон Песковатик
Адрес ул. Гагарина, д. 7
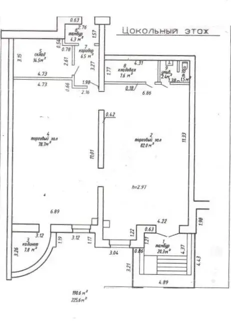
Площадь 225.6 м2

Описание

Продается торговое помещение по адресу: ул. Гагарина. Общая площадь — 225,6 кв.м., состоит из двух раздельных помещений. Расположено на цокольном этаже жилого дома 2004 года постройки. Все коммуникации, Высота потолка — 2,97 м. Есть возможность загрузки со стороны двора, а также большая парковка. Помещение находится в районе с высоким пешеходным трафиком, рядом расположена остановка общественного транспорта. Подходит для различных видов деятельности — торговля, офисы, услуги и др. Отличная коммерческая локация! Звоните для получения дополнительной информации или организации просмотра!


Договор № 186/4 от 04.08.2025 г. ООО «Агентство Уют и К». УНП 391850235. Лицензия от 04 апреля 2017 г., выдана бессрочно Министерством юстиции Республики Беларусь и зарегистрирована в едином реестре лицензий за № 34200000021798 на право осуществления деятельности по оказанию риэлтерских услуг.

Код объекта: 998043 Договор с собственником: 186/4 от 2025-08-04 Опубликовано: 21.08.2025 Обновлено: 27.11.2025
0 / 0 / 3
Динамика цен за кв. метрДинамика цен
Похожие объекты
Адрес
Комнат
Площадь
Этаж
Цена за м2
Цена
391.8 м2
532 р. за м2
268.9 м2
1 из
1 998 р. за м2

Вы просматривали

125 963 р. 2 519 р. за м2
Октябрьский р-н
347 484 р. 5 830 р. за м2
Центральный р-н
547 287 р. 2 426 р. за м2
Октябрьский р-н
649 969 р. 5 212 р. за м2
Центральный р-н
976 778 р. 5 212 р. за м2
Центральный р-н
516 897 р. 2 751 р. за м2
Первомайский р-н
807 900 р. 6 009 р. за м2
Фрунзенский р-н
1 605 376 р. 6 081 р. за м2
Партизанский р-н
Торговый объект, 225.6 м2
Витебск, ул. Гагарина, д. 7
547 287 р.
2 426 р. за м2
Уютик
Пожалуйста, скажите, что нашли этот объект на Domovita.by
+
Фильтр сохранен