Выберите валюту для сайта:
BYN
Подать БЕСПЛАТНО
Объект в архиве
К результатам поиска

Купить складское помещение на ул. Ленинградская в Витебске

2544 м2 1 этаж из 1 Железнодорожный район / Титова
Объект в архиве
Уважаемые пользователи, данное объявление больше не актуально. Поэтому мы убрали все контакты продавца.
Продолжить поиск
Склад
Город Витебск
Район Железнодорожный район
Микрорайон Титова
Адрес ул. Ленинградская
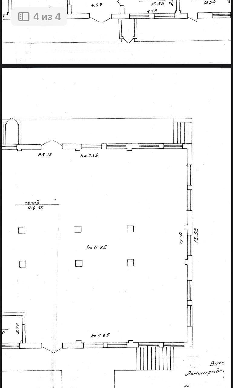
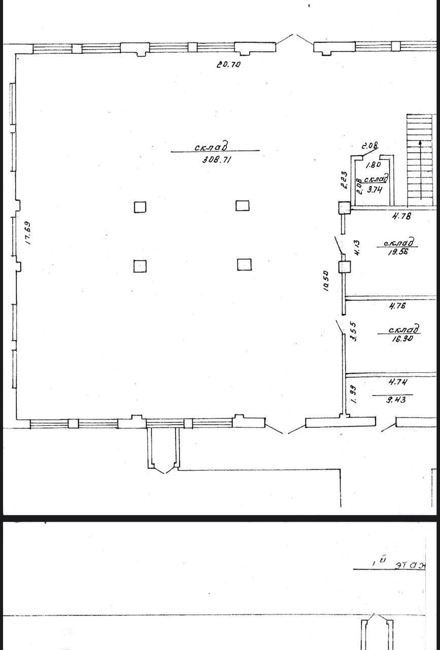
Площадь 2544 м2
Этаж 1

Описание

Продается здание склада, по адресу:  ул. Ленинградская. Общая площадь – 2544 кв.м. Здание — одноэтажное кирпичное, построено в 1961 году. Высота потолков - 4,85 м. Есть естественное освещение. Электричество. Здание оборудовано рампой для удобной погрузочно-разгрузочной деятельности. Большая асфальтированная территория. Удобный подъезд. Объект находится в хорошем состоянии. Полностью сдан в аренду. Звоните для получения дополнительной информации или организации просмотра!


Договор № 254/4 от 31.10.2025 г. ООО «Агентство Уют и К». УНП 391850235. Лицензия от 04 апреля 2017 г., выдана бессрочно Министерством юстиции Республики Беларусь и зарегистрирована в едином реестре лицензий за № 34200000021798 на право осуществления деятельности по оказанию риэлтерских услуг.

Код объекта: 994484 Договор с собственником: 254/4 от 2025-10-31 Опубликовано: 29.10.2024 Обновлено: 05.11.2025
0 / 0 / 19
Динамика цен за кв. метрДинамика цен
Похожие объекты
Адрес
Комнат
Площадь
Этаж
Цена за м2
Цена
733 м2
387 р. за м2
+
Фильтр сохранен