Выберите валюту для сайта:
BYN
Подать БЕСПЛАТНО

Купить 2-этажную дачу в Восток 92 Брестская область, 25900USD, код 180824

180 м2
Дача
Город Восток 92
Адрес Восток 92
Год постройки 2019
  
Общая площадь 180 м2
Участок 7.00 соток
Площадь дома 180 м2
Этажей 2
Материал стен Блоки
Отделка Строительная отделка
Водоснабжение Скважина

Описание

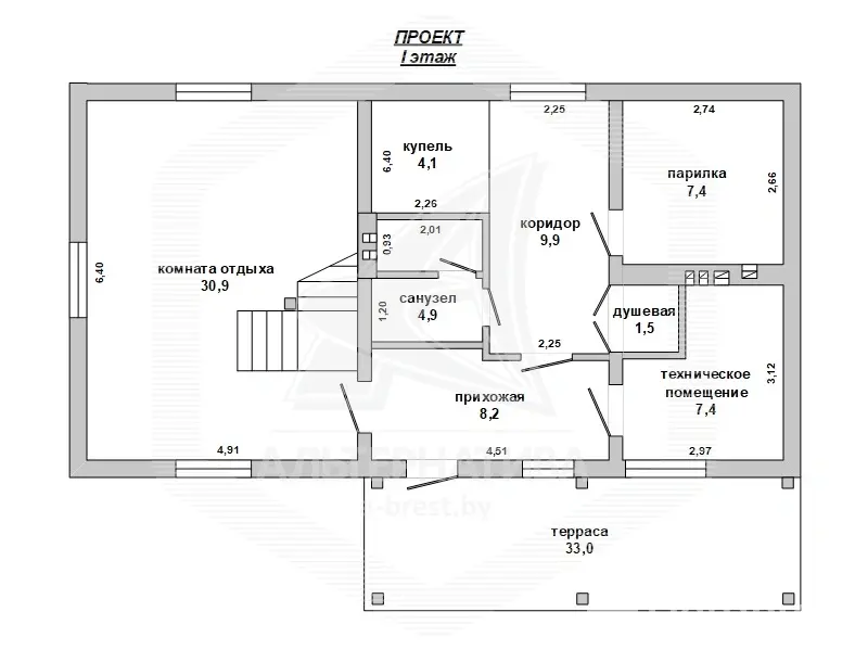
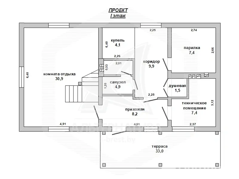
Коробка дачного дома жилого типа в Брестском р-не. 2019 г.п. 2 этажа. Общ.- 180,0 кв.м, 4 комнаты. Стены: материал - газосиликатный блок. Кровля: металлопрофиль (профнастил). Фундамент: ленточный монолитный; материал - бетон. Коммуникации: газ - централизованный (по улице, взносы не оплачены), водоснабжение - скважина и гидрофор, электричество - централизованное, канализация - автономная. Участок - 0,0700 га. Лот - 242569. Смотреть подробнее.

Здесь можно подписаться на рассылку новых предложений и снижения цен по ДАЧАМ и УЧАСТКАМ в Брестском регионе прямо Вам в Viber или Telegram ЗАО «АЛЬТЕРНАТИВА Брест». УНП 291427570 Лицензия № 02240/303 от 02.02.2016г. Договор номер 2569/1 от 03.12.2024
Код объекта: 180824 Договор с собственником: 03.12.2024 №2569/1 Опубликовано: 05.12.2024 Обновлено: 27.03.2026
0 / 1 / 35
Дача, 180 м2
Восток 92
76 426 р.
Усюкевич Денис Владимирович
Пожалуйста, скажите, что нашли этот объект на Domovita.by
+
Фильтр сохранен