Выберите валюту для сайта:
BYN
Подать БЕСПЛАТНО

Продажа 2-этажной дачи в Вымпел УВД Брестская область, 125000USD, код 182309

143 м2
Дача
Адрес Вымпел УВД
Год постройки 2014
  
Общая площадь 143 м2
Участок 5.14 соток
Площадь дома 143 м2
Этажей 2
Материал стен Блоки
Отделка С ремонтом
Тип отопления Газовое
Водоснабжение Скважина

Описание

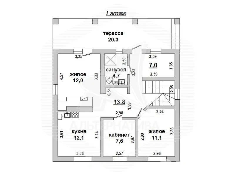
Дачный дом жилого типа в Брестском р-не. 2014 г.п. 1 этаж, мансарда. Общ.СНБ - 163,26 кв.м, общ.- 143,0 кв.м, жил.- 73,4 кв.м, кух.- 12,1 кв.м. 5 комнат. Стены: материал - газосиликатный блок; утепление - пенополистирол (пенопласт); отделка фасада - оштукатурен, окрашен. Кровля: шифер. Фундамент: ленточный сборный; материал - блок демлер; подушка - бетонная. Коммуникации: отопление - газовый котел, газ - централизованный (в доме), водоснабжение - скважина и гидрофор, электричество - централизованное, канализация - автономная. Участок - 0,0514 га. Лот - 250784. Смотреть подробнее.

Здесь можно подписаться на рассылку новых предложений и снижения цен по ДАЧАМ и УЧАСТКАМ в Брестском регионе прямо Вам в Viber или Telegram ЗАО «АЛЬТЕРНАТИВА Брест». УНП 291427570 Лицензия № 02240/303 от 02.02.2016г. Договор номер 784/1 от 12.04.2025
Код объекта: 182309 Договор с собственником: 12.04.2025 №784/1 Опубликовано: 15.04.2025 Обновлено: 12.02.2026
0 / 1 / 23
Дача, 143 м2
Вымпел УВД
358 050 р.
Усюкевич Денис Владимирович
Пожалуйста, скажите, что нашли этот объект на Domovita.by
+
Фильтр сохранен