Выберите валюту для сайта:
BYN
Подать БЕСПЛАТНО

Продажа 1-этажной дачи в Экран-83 Брестская область, 52000USD, код 180254

64 м2
Дача
Город Экран-83
Адрес Экран-83
  
Общая площадь 64 м2
Участок 4.99 соток
Площадь дома 64 м2
Этажей 1
Материал стен Дерево
Отделка С ремонтом
Водоснабжение Скважина

Описание

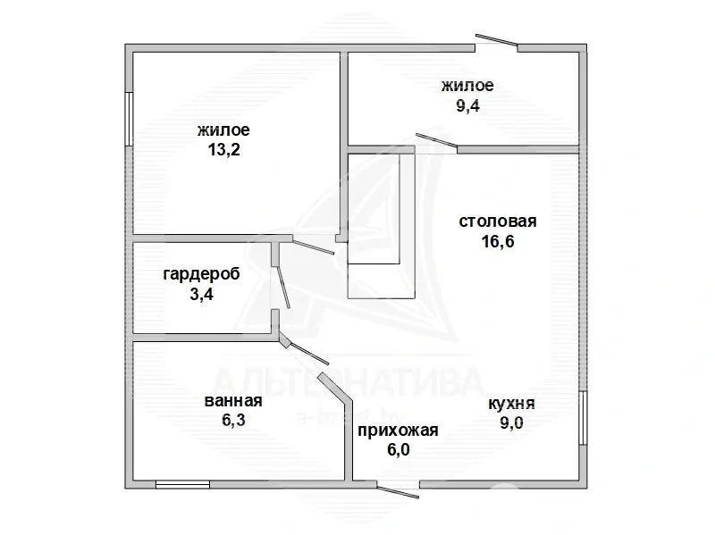
Дачный домик жилого типа в Брестском р-не.Общ.СНБ - 64,0 кв.м, общ.- 64,0 кв.м, жил.- 22,64 кв.м, кух.- 9,0 кв.м. Стены: материал - профилированный брус. Кровля: мягкая битумная черепица. Фундамент: ленточный монолитный; материал - бетон. Коммуникации: отопление - печь и электрические теплые полы, водоснабжение - скважина и гидрофор, электричество - централизованное, канализация - автономная. Хоз.постройки: сарай, навес. Участок - 0,0499 га. Лот - 242073. Смотреть подробнее.

Здесь можно подписаться на рассылку новых предложений и снижения цен по ДАЧАМ и УЧАСТКАМ в Брестском регионе прямо Вам в Viber или Telegram ЗАО «АЛЬТЕРНАТИВА Брест». УНП 291427570 Лицензия № 02240/303 от 02.02.2016г. Договор номер 2073/1 от 30.09.2024
Код объекта: 180254 Договор с собственником: 30.09.2024 №2073/1 Опубликовано: 03.10.2024 Обновлено: 01.03.2026
0 / 4 / 112
Дача, 64 м2
Экран-83
156 458 р.
Семечко Наталья Николаевна
Пожалуйста, скажите, что нашли этот объект на Domovita.by
+
Фильтр сохранен