Подать БЕСПЛАТНО

ОБЪЕКТ В АРХИВЕ

Фотографии отсутствуют

Продажа 2-этажного дома в Юхновке, Минская область ул. Полевая, 150000USD, код 649512

Минская область, д. Юхновка, ул. Полевая
Показать на карте
Московское направление
15 км от МКАД
333 264 р.
Код объекта: 649512
347.5 м2
16.57 соток
Обновлено: 23.05.2025
333 264 р.
Предложить свою цену

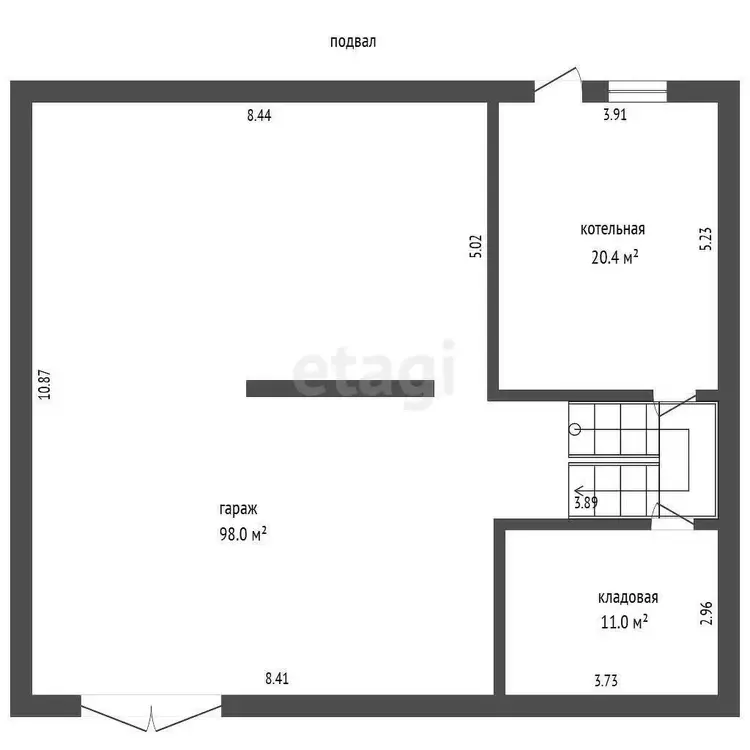
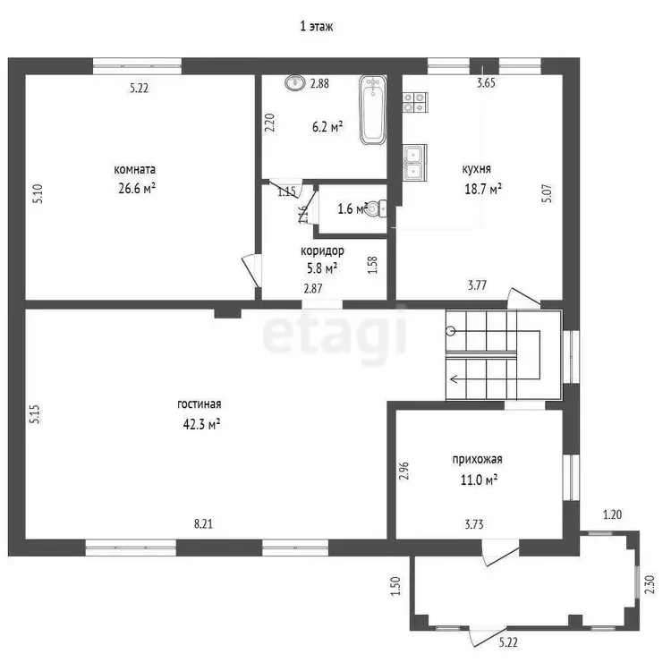
О доме

Площадь общая
347.5 м2
Площадь дома
347.5 м2
Участок
16.57 соток
В продаже
Целый дом
Год постройки
1995
Материал стен
Кирпич

Коммуникации

Водоснабжение: Центральное
Газ: В доме
Электричество: Есть
Канализация: Есть

Описание

Продается дом 100% готовности в д. Юхновка.

Описание:

Тип объекта: просторный двухэтажный дом

Общая площадь: 347,5 м2

Жилая площадь: 115,4 м2

Расположение: живописная д. Юхновка

Участок: 16,5 соток правильной прямоугольной формы, окружает уютный коттедж

Строительные особенности

Материалы стен: высококачественный кирпич

Крыша: прочная оцинкованная металлическая кровля

Перекрытия: бетонные конструкции для надежности и долговечности

Полы: стяжка с теплыми полами по всему дому — комфорт в любое время года

Инженерные системы и коммуникации

Газоснабжение: подключено и функционирует

Электроснабжение: полностью обеспечено

Отопление: газовое, современное и эффективное

Канализация: центральная система для удобства и гигиены

Освещение улиц и уборка территории: организованы на высоком уровне

Вывоз мусора: налажена регулярная служба

Внутреннее пространство

Дом полностью подготовлен к завершению отделочных работ — возможность реализовать любые дизайнерские идеи

Множество просторных комнат — для комфортной жизни и творчества

Дополнительные удобства

Удобный гараж для автомобиля

Инфраструктура и транспорт

В шаговой доступности:

Юхновский биологический заказник и живописные озера — идеальные места для отдыха на природе

Магазины, амбулатория — все необходимое для комфортной жизни

Остановка электрички, городские автобусы и маршрутки (всего в 150 метрах) — отличная транспортная доступность

Район и окружающая среда

Один из самых престижных, безопасных и тихих районов Московского направления, где сочетается уединение с развитой инфраструктурой

Дополнительная информация

Улица с асфальтированным покрытием, уличным освещением и регулярной уборкой создает комфортную атмосферу проживания

Звоните прямо сейчас!

Показ в удобное для Вас время!

ООО «ЭТАЖИ юнайтед»

УНП: 193673318

Договор 352/1 от 22.05.2025г.

Лицензия на оказание риэлтерских услуг №02240/460 МЮ РБ от 03.04.2023

ЮлияАгент
2 года на сайте
Показать почту
Пожаловаться на объявление
Агентство недвижимости
ООО «ЭТАЖИ юнайтед»

Местоположение

Минская область, д. Юхновка, ул. Полевая
Опубликовано: 23.05.2025

Похожие объекты

На этой улице
486 010 р.
д. Юхновка, ул. Полевая
347.5
115.4
м2
16.57 соток