Подать БЕСПЛАТНО

ОБЪЕКТ В АРХИВЕ

Фотографии отсутствуют

Продажа 1-этажного коттеджа в Зазерке, Минская область ул. Народная, 53500USD, код 626593

Минская область, аг. Зазерка, ул. Народная
Показать на карте
Пуховичское направление
21 км от МКАД
156 368 р.
Код объекта: 626593
88.66 м2
15 соток
Обновлено: 02.09.2023
156 368 р.
Предложить свою цену

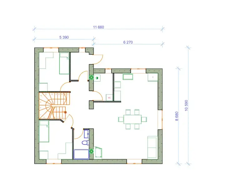
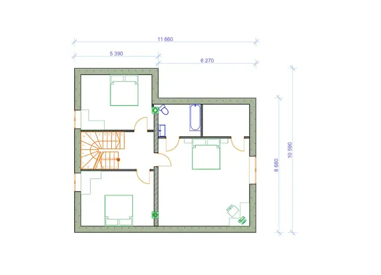
О доме

Площадь общая
88.66 м2
Площадь дома
88.66 м2
Участок
15 соток
В продаже
Целый дом
Готовность дома, %
80
Год постройки
2024
Материал стен
Блоки
Материал крыши
Металлочерепица

Удобства

Лес
Магазин

Коммуникации

Отопление: эл
Водоснабжение: Колодец
Газ: В доме
Электричество: Есть
Канализация: Есть

Описание

Дом аг.Зазерка!

Продается дом в аг.Зазерка. Чистый воздух, тишина и пение птиц по утрам, это идеальное место как для жизни, так и для отдыха!

Дом расположен в 32км от МКАД, если ехать через аг.Гатово около 25км от МКАД, Пуховичское направление.

Год постройки -2023г

Участок – 15 соток

Общая площадь: 88.6 кв.м.

Дом выполнен по современному проекту  (проектная документация имеется). Строился под себя, исходя из этого, были выбраны исключительно отборные и качественные материалы. Возможен выкуп вместе с соседним участком (23 сотки) и переводом его в частную собственность.

Дом выполнен: фундамент: свайно-ростверковый; стены: керамзитобетонные блоки; крыша: металлочерепица GERMANO; утепление: минвата 200х50; отопление -электрическое (газ заведен на участок 1.5м от дома), немецкие окна ПВХ.

На участке растут ели.

Отличное транспортное сообщение : маршрутки - каждый час, электричка. Инфраструктура - магазины, поликлиника, аптека, ветлечебница, банк, общеобразовательная школа, музыкальная школа, конная школа, детский сад.

Прекрасное место для жизни и для реализации проекта вашего Дома Мечты!

Поможем продать вашу недвижимость по максимально выгодной цене!

А так же приобрести жилье вашей мечты!

Звоните! Получите бесплатную консультацию от наших специалистов!

Будьте на шаг ближе к своей мечте!

Поможем с продажей /покупкой вашей недвижимости! 

ЯнаАгент
2 года на сайте
Показать почту
Пожаловаться на объявление
Агентство недвижимости
ООО «ЭТАЖИ юнайтед»

Местоположение

Минская область, аг. Зазерка, ул. Народная
Опубликовано: 02.09.2023

Похожие объекты

На этой улице
194 012 р.
аг. Зазерка, ул. Народная
160
110
30 м2
15 соток