Выберите валюту для сайта:
BYN
Подать БЕСПЛАТНО

Продажа 3-этажной дачи в ЗЕЛЁНАЯ ДУБРАВУШКА Минская область, 31500USD, код 184836

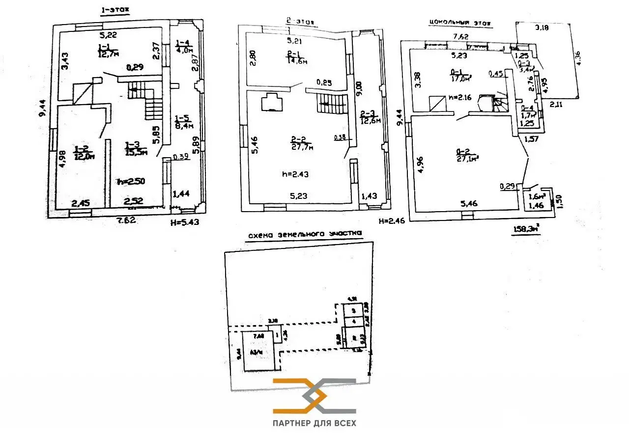
158.3 м2
97 927 р.
Дача
Адрес ЗЕЛЁНАЯ ДУБРАВУШКА
Направление Молодечненское
Удаленность от МКАД 35 км
  
Общая площадь 158.3 м2
Участок 12.33 соток
Площадь дома 158.3 м2
Этажей 3
Материал стен Блоки
Тип отопления Печное
Канализация Есть

Описание

Продаётся дача для большой и дружной семьи в с/т "Зелёная Дубравушка".

Находится дача всего в 35 км от МКАД в Молодечненском направлении. В пешей доступности ж/д станция Дубравы.

Большой и просторный дом, 3 этажа, общей площадью 158,3 м.кв. Обустроенный просторный подвал для хранения овощей и фруктов. Печное отопление, на 3-ем этаже камин. Дом смешанной конструкции: внутренний слой - газосиликатные блоки, наружный - керамический кирпич.

У вас есть возможность обустроить дом под себя.

Участок большой 12.33 сотки, с небольшим уклоном, ухоженный, огорожен: забор деревянный + сетка-рабица. На участке отдельно стоящие сарай и баня. Вода сезонная (на участке), канализация местная.

Отличное транспортное сообщение: электричка Минск-Молодечно до ж/д ст. Пралеска или Дубравы. От ж/д ст. Дубравы 8 минут ходьбы. На ст. Пралески есть 2 продуктовых магазина с круглогодичным графиком работы, строительный магазин. В выходные дни рядом с магазином организован мини-рынок с/х продукции.

Садовое товарищество "Зелёная Дубравушка" находится в красивом месте - рядом с лесом. До товарищества без проблем можно добраться и на машине. Подъездные пути отличные: асфальт и 0.4 км ПГС.

Мечтали  о даче? Звоните!

Мы поможем вашей мечте осуществиться!

ООО «Партнер для всех», УНП 690665135, лицензия Министерства юстиции Республики Беларусь № 05240/321 от 02.12.2016, договор на оказание риэлтерских услуг № 6/7 от 21.01.2026г

Код объекта: 184836 Договор с собственником: 6/7 от 2026-01-21 Опубликовано: 27.01.2026 Обновлено: 11.03.2026
1 / 8 / 116
Дача, 158.3 м2
ЗЕЛЁНАЯ ДУБРАВУШКА
92 081 р.
Ирина
Пожалуйста, скажите, что нашли этот объект на Domovita.by
+
Фильтр сохранен