Выберите валюту для сайта:
BYN
Подать БЕСПЛАТНО
Объект в архиве
К результатам поиска

Купить 2-этажную дачу в Зеленой Поляне Гомельская область, 16000USD, код 179575

49.3 м2
Объект в архиве
Уважаемые пользователи, данное объявление больше не актуально. Поэтому мы убрали все контакты продавца.
Продолжить поиск
Дача
Адрес Зеленая Поляна
  
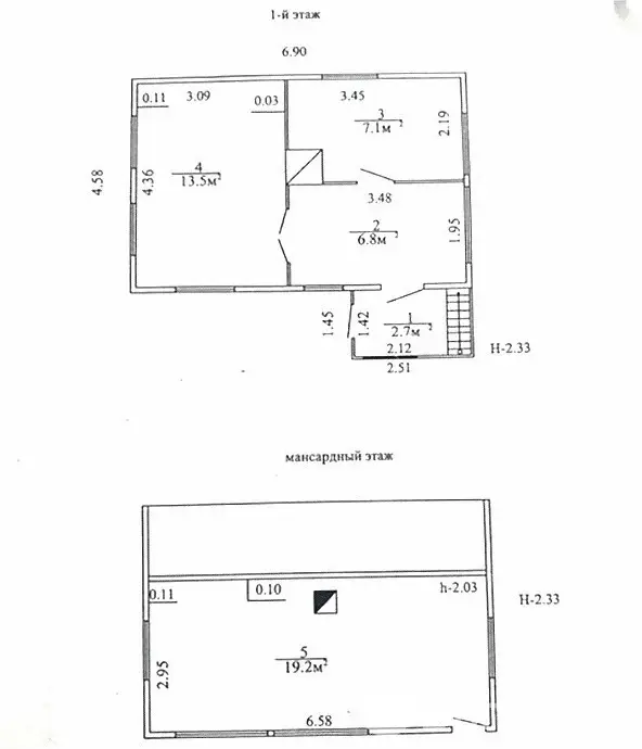
Общая площадь 49.3 м2
Участок 6.33 соток
Площадь дома 49.3 м2
Комнат 2
Этажей 2
Материал стен Дерево
Тип отопления Печное
Удобства
Лес

Описание

Продаётся участок площадью 0, 0628 га в СТ «Зелёная Поляна», находящийся в частной собственности. Участок обработан, на нём высажены плодовые деревья и кусты. Заведена сезонная вода . Есть летняя кухня, установлен металлический гараж. Кругом лес, СТ примыкает к Налибокской пуще. В шаговой доступности 2 великолепных озёра: 1-Лесное или Бездонное, и 2-е в 7 минутах езды по асфальтированной дороге, или пешком по лесу, с прекрасно оборудованным пляжем и местом для купания Полоневичское озеро.   Торг реальному покупателю. Ещё больше объектов недвижимости в нашем Telegram-канале @urielt_minsk
Код объекта: 179575 Договор с собственником: #132/1 от 18.07.2024 Опубликовано: 09.08.2024 Обновлено: 01.02.2026
0 / 4 / 101

Вы просматривали

+
Фильтр сохранен