Выберите валюту для сайта:
BYN
Подать БЕСПЛАТНО

Купить 1-этажную дачу в Железобетонщик 95 Брестская область, 68000USD, код 170955

106.9 м2
Дача
Адрес Железобетонщик 95
  
Общая площадь 106.9 м2
Участок 10.00 соток
Площадь дома 106.9 м2
Этажей 1
Материал стен Блоки
Тип отопления Печное
Водоснабжение Скважина

Описание

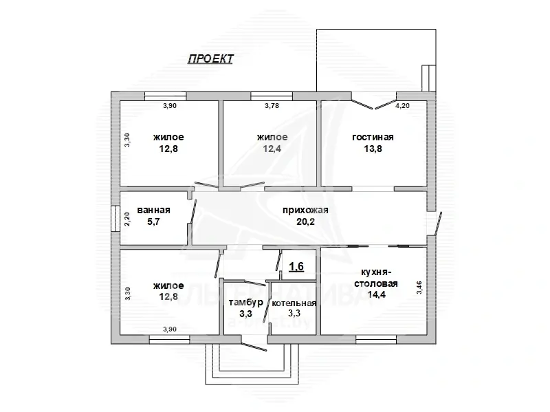
Коробка дачного дома жилого типа в Брестском р-не. 1 этаж. Общ.СНБ -120,1 кв.м, общ.- 106,9 кв.м, жил.- 52,1 кв.м, кух.- 14,5 кв.м. 4 комнаты. Стены: материал - газосиликатный блок. Кровля: металлочерепица. Фундамент: ленточный монолитный; материал - бетон; подушка - песчано-гравийная. Коммуникации: водоснабжение - скважина, электричество - централизованное (на участке). Участок - 0,1000 га. Лот - 230489. Смотреть подробнее.

Здесь можно подписаться на рассылку новых предложений и снижения цен по ДАЧАМ и УЧАСТКАМ в Брестском регионе прямо Вам в Viber или Telegram ЗАО «АЛЬТЕРНАТИВА Брест». УНП 291427570 Лицензия № 02240/303 от 02.02.2016г. Договор номер 489/1 от 20.02.2023
Код объекта: 170955 Договор с собственником: 20.02.2023 №489/1 Опубликовано: 19.08.2022 Обновлено: 05.11.2025
0 / 0 / 42
Дача, 106.9 м2
Железобетонщик 95
196 908 р.
Царук Сергей Васильевич
Пожалуйста, скажите, что нашли этот объект на Domovita.by
+
Фильтр сохранен