Подать БЕСПЛАТНО

ОБЪЕКТ В АРХИВЕ

Фотографии отсутствуют

Продажа 3-комнатной квартиры в Жлобине, м-н 19-й, д. 18

Гомельская область, г. Жлобин, м-н 19-й, 18
Показать на карте
130 280 р.
Цена за м2: 1 806 р.
Код объекта: 1155903
3 комнаты
65.89 м2
7 этаж из 9
Обновлено: 26.04.2025
130 280 р.
Цена за м2: 1 806 р.
Предложить свою цену

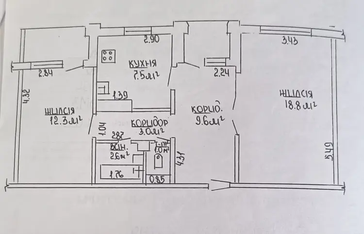
О квартире

Площадь
65.89 м2
общая
40.43 м2
жилая
12.35 м2
кухня
Санузел
раздельный
Балкон
Лоджия
Тип ремонта
Косметический

О доме

Этаж
7 из 9
Материал стен
Панельный
Год постройки
1992

Описание

Продается 3-комнатная квартира в 19 микрорайоне, дом 18. Квартира имеет удобную планировку с окнами на две стороны. Комнаты просторные и светлые: 17,1 м², 13,4 м² и 10,2 м² соответственно. Кухня площадью 12,4 м² открывает завораживающий вид. Просторный коридор, в котором расположен большой шкаф-купе и раздельный санузел обеспечивают дополнительное удобство в повседневной жизни. Квартира не угловая, теплая и уютная. Установлены окна ПВХ, на полу паркет. Входная дверь и дверь в тамбур металлические, есть все приборы учёта (газ, вода, электричество), в доме новый лифт и аккуратный подъезд. Есть система сигнализации. Приятным бонусом для новых собственников будет то, что остается частично мебель – кухонный гарнитур, а также стиральная машина. Соседи порядочные и доброжелательные. Расположение квартиры удобно — в пешей доступности гипермаркет, остановки общественного транспорта во всех направлениях, магазины, школа, детские сады и другие объекты инфраструктуры. Агентство недвижимости «Юриэлт» гарантирует законность и чистоту сделки. Приглашаем на просмотр всех желающих! Звоните для получения дополнительной информации и организации просмотра.
ЕкатеринаАгент
2 года на сайте
Условия сделки:Чистая продажа
Показать почту
Пожаловаться на объявление
Агентство недвижимости
Юриэлт, филиал г. Жлобин

Местоположение

Гомельская область, г. Жлобин, м-н 19-й, 18
Опубликовано: 26.04.2025

Возможно, вам будет интересно

Похожие объекты

На этой улице
141 357 р.
Цена за м2: 2 589 р.
г. Жлобин, м-н 19-й
2-комн. кв
54.6
29.7
9.5 м2
5 этаж из 9