Подать БЕСПЛАТНО

ОБЪЕКТ В АРХИВЕ

Фотографии отсутствуют

Продажа 2-этажного дома в Жодино, Минская область ул. Боровая, 350000USD, код 631818

Минская область, г. Жодино, ул. Боровая
Показать на карте
Московское направление
47 км от МКАД
999 915 р.
Код объекта: 631818
5 комнат
343.2 м2
12.95 соток
Обновлено: 30.09.2025
999 915 р.
Предложить свою цену

О доме

Площадь общая
343.2 м2
Площадь дома
343.2 м2
Участок
12.95 соток
В продаже
Целый дом
Готовность дома, %
100
Год постройки
2006
Материал стен
Блоки
Материал крыши
Металлочерепица

Удобства

Сигнализация
Лес
Гараж
Камин
Бассейн

Коммуникации

Отопление: Газовое
Водоснабжение: Центральное
Газ: В доме
Электричество: Есть
Телефон: Да
Канализация: 1

Описание

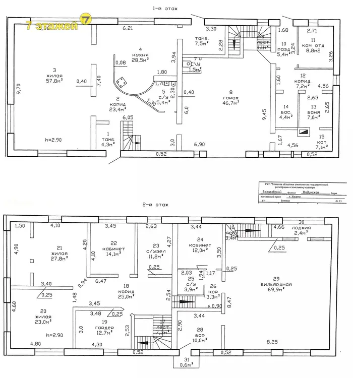
Жодино. Лысая гора. Уникальный дом, который состоит из двух автономных частей, что позволяет комфортно проживать как одной большой семье, так и двум отдельным семьям. Дом расположен на благоустроенном участке, в шаговой доступности от центра города, в тихом районе, рядом с лесным массивом. Дом обладает своей магией и не оставит Вас равнодушным. Он производит волшебный, расслабляющий и умиротворяющий эффект, и Вы непременно захотите остаться в нем. - Газ, вода, канализация - всё центральное - 9 отдельных комнат разной площади - Высота потолков 2.9 м - 3 кухни разной площади, самая большая 28.5 кв. м. - Просторная гостиная 58 кв. м на первом этаже; - Каминный зал 70 кв. м. с высокими потолками, подиумом, камином и лоджией на втором этаже - В дом интегрирован пылесос компании Siemens - Видеодомофон, охранная сигнализация, оптоволокно - Отапливаемый большой гараж 47 кв. м. (открывается с пульта) - Сауна с мини бассейном и комнатой отдыха - Камин - Подвал для хранения - Крытая, просторная и уютная терраса - Удобная парковка под навесами перед домом и просторная зеленая территория за домом - Двое въездных ворот ( одни открываются с пульта) - Забор из бессер блоков по периметру всего участка - Газон - Многолетняя виноградная лоза - 100 метров до живописной лесопарковой зоны, удобной для прогулок в любое время года - Удобный выезд в центр города и на Минск - Асфальт до дома - 15 минут пешком до центра Жодино со всей инфраструктурой Instagram: realestate.minsk Окажем помощь в получении кредита или позитивно продадим Вашу недвижимость для покупки этого дома
АгентАгент
9 лет на сайте
Показать почту
Пожаловаться на объявление
Агентство недвижимости
7 этажей

Местоположение

Минская область, г. Жодино, ул. Боровая
Опубликовано: 30.09.2025