Подать БЕСПЛАТНО

Продажа 1-этажного коттеджа в Жодишках, Гродненская область ул. Школьная, д. 23, 7000USD, код 653784

Гродненская область, аг. Жодишки, ул. Школьная, 23
Показать на карте
22 166 р.
Код объекта: 653784
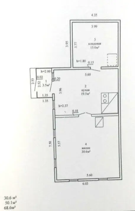
68.6 м2
8.75 соток
Обновлено: 29.09.2025
22 166 р.
Предложить свою цену

О доме

Площадь общая
68.6 м2
Площадь дома
68.6 м2
Участок
8.75 соток
В продаже
Целый дом
Готовность дома, %
100
Материал стен
Дерево
Материал крыши
Шифер

Коммуникации

Водоснабжение: Колодец
Газ: В доме
Электричество: Есть
Канализация: Есть

Описание

Продается дом по хорошей цене  в аг. Жодишки Сморгонский р-н Гродненской обл. 50,1м общей площади

 

Дом под ремонт, так что сможете осуществить свои задумки.

Участок 8,75 соток в аренде. Н а участке находятся три сарая, гараж , баня, подвал.  Газ проведен по улице. Во дворе скважина. Туалет на улице.  Отопление печное.

В  агро-городке хорошо развита инфраструктура: есть магазины, школа, костел.

Рядом с деревней есть множество достопримечательностей: водяная мельница, Троицкий костёл постройки 1600 — 1612 годов, брама, ограда и часовни, Усадьба с парком XVIII — XIX веков, включающая в себя здание бывшей усадьбы, бровар, водяную мельницу, винокурня. Церковь Святого Константина и Елены постройки 2006 года. Католическое кладбище с часовней XIX века и могилами польских солдат времён советско-польской войны.

Неподалеку протекает живописная река Вилия.

Вокруг грибные и рыбные места.

Возможен обмен.

Приезжайте на просмотр!

Гарантия безопасности сделки и полное юридическое сопровождение!

Еще не продали или хотите обменять Вашу недвижимость, мы Вам поможем! Подайте онлайн заявку на нашем сайте или обратитесь к нам по нашему телефону, чтобы получить более подробную информацию.

Частное унитарное предприятие «Дианэст», УНП 190124316, лицензия №02240/54  от  06.06.2005.  Договор № 106/3 от 29.09.2025г

ДианэстАгент
9 лет на сайте
Показать почту
Пожаловаться на объявление
Агентство недвижимости
Дианэст

Местоположение

Гродненская область, аг. Жодишки, ул. Школьная, 23
Опубликовано: 29.09.2025