Подать БЕСПЛАТНО

ОБЪЕКТ В АРХИВЕ

Продать 2-этажный дом в Ратомке, Минская область ул. Тихая, 135000USD, код 656246

Минская область, аг. Ратомка, ул. Тихая
Показать на карте
Молодечненское направление
6 км от МКАД
383 589 р.
Код объекта: 656246
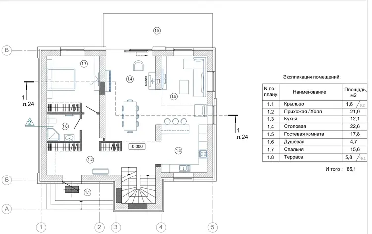
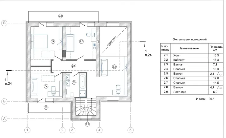
255.1 м2
16.5 соток
Обновлено: 20.01.2026
383 589 р.
Предложить свою цену

О доме

Площадь общая
255.1 м2
Площадь дома
255.1 м2
Участок
16.5 соток
В продаже
Целый дом
Готовность дома, %
100
Год постройки
1998
Материал стен
Кирпич

Коммуникации

Водоснабжение: Центральное
Газ: В доме
Электричество: Есть
Канализация: Есть

Описание

Дом из кирпича на самой тихой и живописной улице в Ратомке.

Два этажа и цокольный этаж, устроенный по принципу шале. С обратной стороны, дом выглядит как трехэтажный.

Максимально продуманный и удобный и эргономичный проект.

Дом готов к финальной отделке. Реконструкция узаконена.

В доме выполнены следующие работы:

Гидроизоляция фундамента, усиление фундамента, железобетонное армированное кольцо вокруг дома, новая кровля, новые окна и двери, фундамент и подготовка под парковку.

Все коммуникации в доме: газ, электричество 220В и 380В, канализация местная, вода центральная (башня на квартал домов).

Участок 16,5 соток, разноуровневый.

Дорога к дому освещена и асфальтирована. Рядом лес, улица Тихая находится в стороне от шумных дорог.

Все соседние дома жилые. Соседи дружные.

В поселке – станция электрички, школа, д/сад, центр конного спорта, рядом "Робинсон-Клуб", Минское море.

Транспорт – электричка, маршрутка в 3-х минутах ходьбы.

Дом готов к продаже, передача ключей на сделке.

Торг возможен, обратите внимание на тот факт, что только «голый» участок в Ратомке и минском районе стоит примерно ту же сумму. Здесь же предложен к продаже: огороженный полностью участок среди жилых домов, все коммуникации введенные в дом, коробка дома с крышей и окнами.

 

 

Лицензия: №02240/362 МЮ РБ, 31.07.2018

ЕленаАгент
7 лет на сайте
Показать почту
Пожаловаться на объявление
Агентство недвижимости
Фаттория Плюс

Местоположение

Минская область, аг. Ратомка, ул. Тихая
Опубликовано: 20.01.2026