Подать БЕСПЛАТНО

Продажа 2-этажного коттеджа в Ждановичах, Минская область ул. Заречная, 330000EUR, код 658776

Минская область, аг. Ждановичи, ул. Заречная
Показать на карте
Молодечненское направление
1 км от МКАД
1 088 076 р.
Код объекта: 658776
236.9 м2
10 соток
Обновлено: 28.04.2026
1 088 076 р.
Предложить свою цену

О доме

Площадь общая
236.9 м2
Площадь дома
236.9 м2
Участок
10 соток
В продаже
Целый дом
Готовность дома, %
100
Год постройки
2013
Материал стен
Блоки

Коммуникации

Водоснабжение: Колодец
Газ: В доме
Электричество: Есть
Канализация: Есть

Описание

 

Продается готовый дом в аг.Ждановичи, улица Заречная.

 

Дом 2013 года постройки. Участок 10 соток в частной собственности.

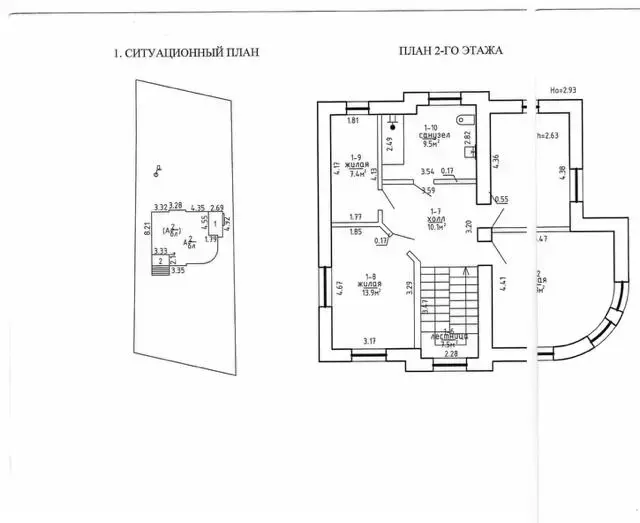
Общая площадь по СНБ-255.6 кв.м.

Дом состоит из 2-х этажей и террасы.

Первый этаж состоит из кухни-столовой, просторной гостиной с камином и выходом на террасу, второй этаж – 4 жилых комнаты и санузел. В доме предусмотрен цокольный этаж с санузлом, кладовой и 2-мя комнатами.

Продается с мебелью и техникой.

Фундамент – блоки ФБС с гидроизоляцией. Дом построен из блоков 50 см толщиной, оштукатурен. Цоколь обложен клинкерной плиткой. Крыша – мягкая черепица ТЕХНОНИКОЛЬ, установлены стеклопакеты Rehau, отопление газовое, котел Vaillant, бойлер Vaillent объёмом 200 л, установлен громоотвод, вода – скважина 21 м, канализация местная. Интернет – оптоволокно.  Имеются проекты на дом, электричество и газ.  Дом теплый.

 

На участке ухоженный газон, многолетние деревья и кустарники, ограждён забором, откатные ворота, асфальтированные подъездные пути. 

 

Дом расположен в коттеджной застройке рядом с Минском, 3 минуты от кольцевой, рядом гипермаркет Корона, остановка общественного транспорта, школа, детский сад. В пешей доступности находится Минское море и лесная зона.

 

 

Отличный вариант как для жизни, так и для инвестиций!

Чистая продажа! Ключи в День сделки!

Поможем продать Вашу недвижимость для покупки этой!

Агентство недвижимости МариэлтАгент
8 лет на сайте
Показать почту
Пожаловаться на объявление
Агентство недвижимости
Мариэлт

Местоположение

Минская область, аг. Ждановичи, ул. Заречная
Опубликовано: 28.04.2026

Похожие объекты

На этой улице
225 608 р.
аг. Ждановичи, ул. Заречная
26.8
12.9
13.4 м2
6 соток
842 618 р.
аг. Ждановичи, ул. Заречная
241.7
117.4
м2
16.14 соток