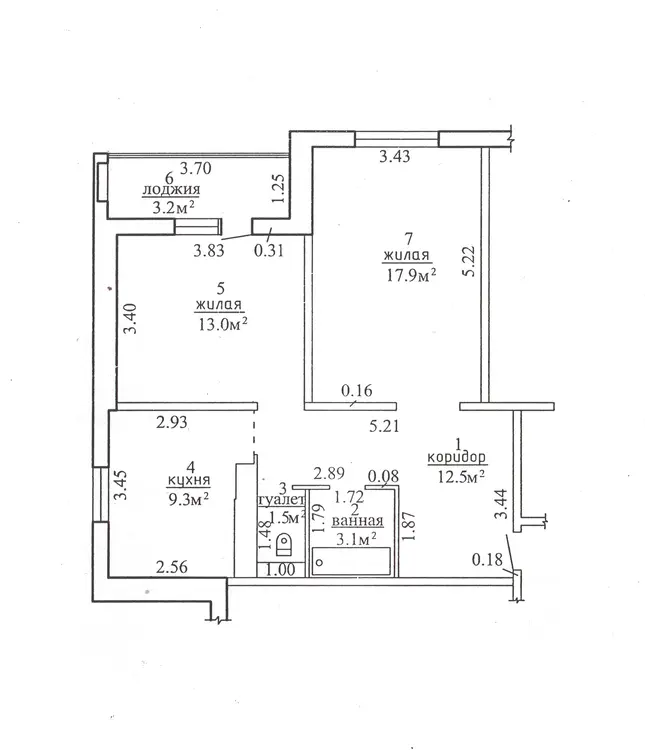
О квартире
Площадь
60.5 м2
общая
30.9 м2
жилая
9.3 м2
кухня
Санузел
раздельный
Балкон
Лоджия
Тип ремонта
Хороший
О доме
Этаж
13 из 19
Материал стен
Панельный
Год постройки
2009
Описание
Татьяна — Агент
9 лет на сайте
Условия сделки:Чистая продажа
Показать почту
Пожаловаться на объявление
Агентство недвижимости
Юриэлт
УНП: 101214439 Лицензия: от 17.02.2005 № 40 МЮ РБ
Договор №: #149/1 от 07.10.2025




















