Выберите валюту для сайта:
BYN
Подать БЕСПЛАТНО

Купить складское помещение в Ждановичах

132.8 м2 1 этаж из 1
1 200 511 р.
1 050 071 р.
Склад
Город Ждановичи
Адрес Ждановичи
Площадь 132.8 м2
Этаж 1

Описание

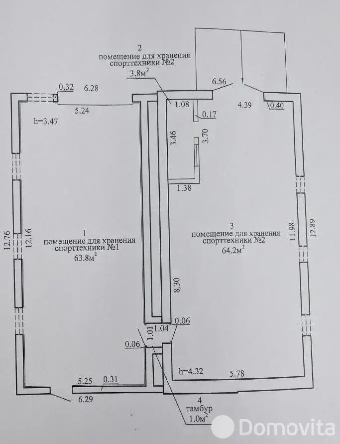
Здание с двумя помещениями (132,8 м2) + участок 6,37 сотки –  решение для бизнеса или личного использования. 

Идеи для использования:

Прокат и хранение: яхты, катера, гидроциклы, квадроциклы, мотоциклы 

Склад или мастерская – отличная инфраструктура для бизнеса 

Личная база для хранения техники и отдыха у воды 

Готовый бизнес или выгодное вложение? Это предложение – и то, и другое!

Характеристики:

Помещение №1 (64,2 м2, 1980 г.): 

Жидкотопливный котел – независимое отопление 

Кран-балка – удобство для погрузки/разгрузки 

Подсобное помещение – дополнительное пространство для хранения 

Раздвижные ворота – легкий доступ для техники 

Высота потолков 3,47 м

Помещение №2 (63,8 м2, 2022 г.):

Скрытое ИК отопление Карбонтек – комфорт в любое время года 

Роллетные ворота – безопасность и удобство 

Наливной пол – прочное и ровное покрытие 

Высота потолков 4,32 м

Участок 6,37 сотки полностью огорожен забором – ваша техника и оборудование под надежной защитой.

Важно: на территории располагается здание трансформаторной подстанции.

Расположение: 

Тихий и живописный берег Минского моря, по соседству Riviera Country Club, пляж №8 – место, где сочетаются спокойствие природы и удобная транспортная доступность. 

Выход на воду и место спуска и подъема судна на воду.

Звоните, чтобы увидеть своими глазами и оценить потенциал этого места!

Консультация на любом этапе покупки / продажи недвижимости.

ООО «ЭТАЖИ юнайтед»

УНП 193673318

Договор 964/1 от 25.03.2025г.

Лицензия на оказание риэлтерских услуг №02240/460 МЮ РБ от 03.04.2023.

Код объекта: 994779 Договор с собственником: 964/1 от 2025-03-25 Опубликовано: 04.04.2025 Обновлено: 11.03.2026
0 / 0 / 18
Динамика цен за кв. метрДинамика цен

Вы просматривали

Склад, 132.8 м2
Ждановичи
1 050 071 р.
7 907 р. за м2
Вероника
Пожалуйста, скажите, что нашли этот объект на Domovita.by
+
Фильтр сохранен