Подать БЕСПЛАТНО

ОБЪЕКТ В АРХИВЕ

Продажа полдома в 1-этажном доме в Барановичах, ул. Куйбышева, д. 30, код 647675

Брестская область, г. Барановичи, ул. Куйбышева, 30
Показать на карте
82 653 р.
Код объекта: 647675
48.3 м2
15 соток
Обновлено: 03.04.2025
82 653 р.
Предложить свою цену

О доме

Площадь общая
48.3 м2
Площадь дома
48.3 м2
Участок
15 соток
В продаже
Полдома
Год постройки
1939
Материал крыши
Шифер

Коммуникации

Водоснабжение: Центральное
Газ: В доме
Электричество: Есть
Канализация: Есть

Описание

Продается половина жилого дома по ул. Куйбышева.

Уютный брусчатый дом квартирного типа, практически в центре города. В доме есть все для комфортной жизни.

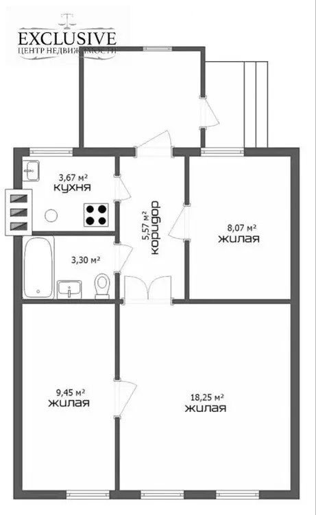
Общая площадь - 48.32 м2, жилая- 35.78 м2, кухня - 3.67 м2.

3 жилые комнаты, две изолированные одна проходная.

Установлены пластиковые окна с отличной шума и теплоизоляцией, частично на полу уложен ламинат, сан. узел совмещенный, отделан плиткой.

Подведены все коммуникации: канализация - центральная, водоснабжение - центральное, установлены колонка и газовый котел.

К данной квартире относится участок в 15 соток, рядом с домом сарай, огород, растут плодово- ягодные деревья.

В шаговой доступности от центра, рядом с домом: продовольственные магазины, школа №14, поликлиника, больница, рестораны "Папарать кветка" ," Крокус", "Старый парк" и "Молодой парк". Все условия для комфортной жизни.

Более подробную информацию можно узнать по телефону.

Агент
5 лет на сайте
Показать почту
Пожаловаться на объявление
Агентство недвижимости
«Центр недвижимости Эксклюзив»

Местоположение

Брестская область, г. Барановичи, ул. Куйбышева, 30
Опубликовано: 03.04.2025

Похожие объекты

На этой улицеВ этом доме
94 461 р.
г. Барановичи, ул. Куйбышева
48.3
35.78
3.67 м2
15 соток
94 461 р.
г. Барановичи, ул. Куйбышева
48.3
35.78
3.67 м2
15 соток