Выберите валюту для сайта:
BYN
Подать БЕСПЛАТНО

Купить торговое помещение на ул. Зеленая, д. 22 в Березино, 99000USD, код 997895

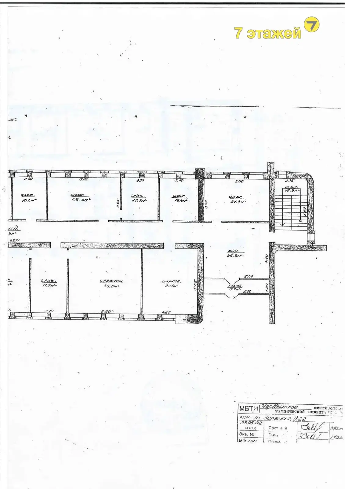
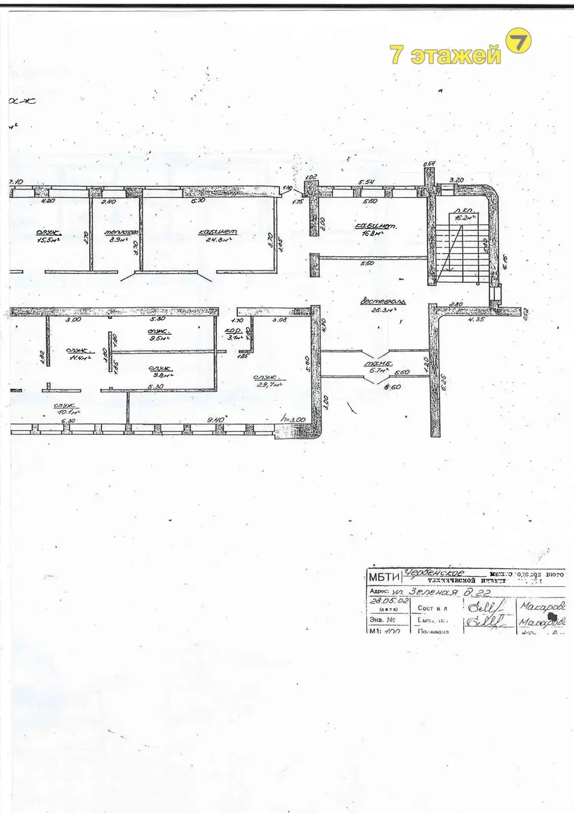
1670.2 м2
382 795 р.
293 773 р.
Торговый объект
Город Березино
Адрес ул. Зеленая, д. 22
Площадь 1670.2 м2

Описание

Радикальное снижение цены! ???? Продается уникальное административное здание общей площадью 1670.2 м² в г. Березино, всего в 94 км от МКАД в направлении Могилева! Основные характеристики: Форма собственности: ЧАСТНАЯ Назначение: нежилое (служебно-бытовой корпус) Площадка: 33 сотки, огороженная забором Подъезд: удобный асфальтированный Здание 1988 года постройки требует ремонта и реконструкции по вашему вкусу. Основные конструктивные элементы хорошем состоянии: кирпичные стены утеплены и оштукатурены. Крыша — металлочерепица. Электричество подключается без проблем. Удобства: Центральные: вода и канализация Проект газификации в наличии Возможность трансформации под разные виды бизнеса: торгово-развлекательный центр, офисы и другое! Преимущества: Находится на въезде в город с интенсивным автотрафиком, рядом с производственной базой "Белавтодор". Город с населением 12 тыс. чел. и развивающейся промышленностью: Березинский сыродельный завод, «Минск Кристалл», и другие! ???? Это ваш шанс на удачное вложение! ???? ???? Звоните, записывайтесь на просмотр и задавайте вопросы! Грандиозный торг для реальных покупателей. Рассматриваем обмен на квартиру в Минске, дом с участком не менее 10 соток не более 20 км от МКАД (участок-не СТ, со всеми коммуникациями)
Код объекта: 997895 Договор с собственником: 884/3 от 19.06.2025 Опубликовано: 04.09.2025 Обновлено: 03.11.2025
0 / 0 / 1
Динамика цен за кв. метрДинамика цен

Вы просматривали

Торговый объект, 1670.2 м2
Березино, ул. Зеленая, д. 22
293 773 р.
176 р. за м2
Агент
Пожалуйста, скажите, что нашли этот объект на Domovita.by
+
Фильтр сохранен