О квартире
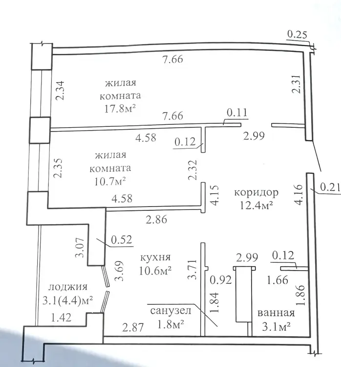
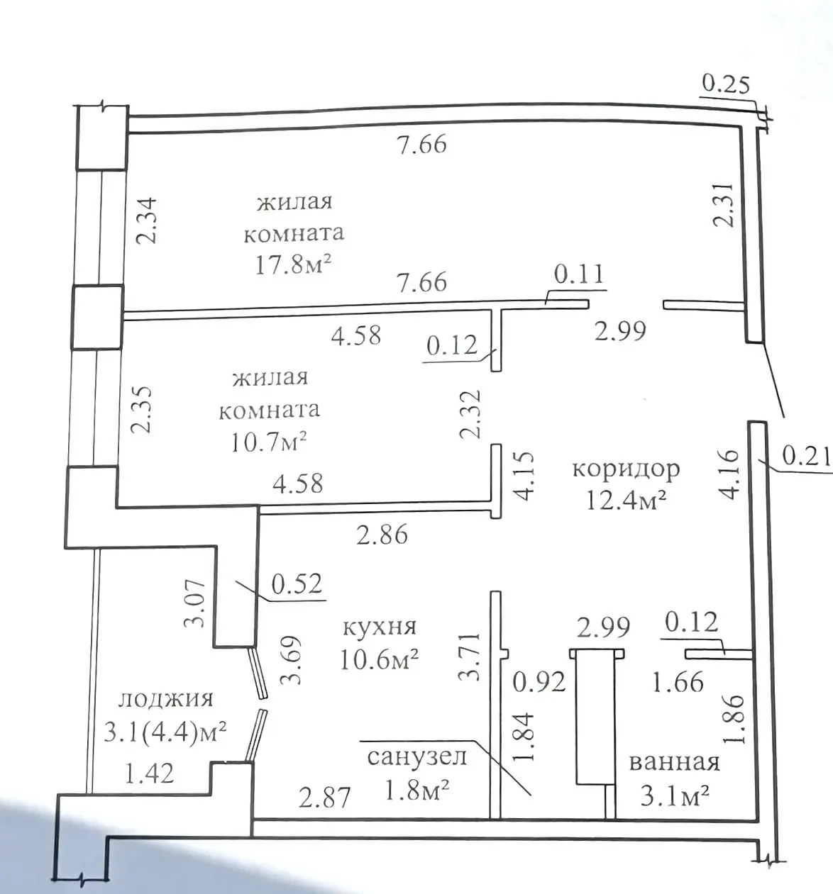
Площадь
56.4 м2
общая
28.5 м2
жилая
10.56 м2
кухня
Санузел
раздельный
Балкон
Лоджия
Тип ремонта
Хороший
О доме
Этаж
2 из 19
Материал стен
Каркасно-блочный
Год постройки
2024
Описание
Евгения — Агент
9 лет на сайте
Условия сделки:Чистая продажа
Показать почту
Пожаловаться на объявление
Агентство недвижимости
Юриэлт
УНП: 101214439 Лицензия: от 17.02.2005 № 40 МЮ РБ
Договор №: #55/1 от 24.03.2026




















