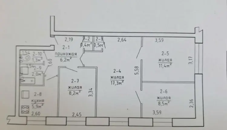
О квартире
Площадь
51.2 м2
общая
34.4 м2
жилая
5.6 м2
кухня
Санузел
раздельный
Балкон
Балкон
О доме
Этаж
2 из 5
Материал стен
Кирпичный
Год постройки
1961
Описание
Екатерина — Агентство
10 месяцев на сайте
Условия сделки:продажа
Показать почту
Пожаловаться на объявление
Агентство недвижимости
Центр недвижимости 24 на 7
УНП: 693348256 Лицензия: от 29.05.2025 №02240/507
Договор №: 64/2 от 2025-07-31










