Подать БЕСПЛАТНО

ОБЪЕКТ В АРХИВЕ

Фотографии отсутствуют

Продажа 2-комнатной квартиры в Бакунах, д. 1А

Гродненская область, д. Бакуны, ,
Показать на карте
39 500 р.
Цена за м2: 929 р.
Код объекта: 1200627
2 комнаты
42.5 м2
1 этаж из 2
Обновлено: 25.09.2025
39 500 р.
Цена за м2: 929 р.
Предложить свою цену

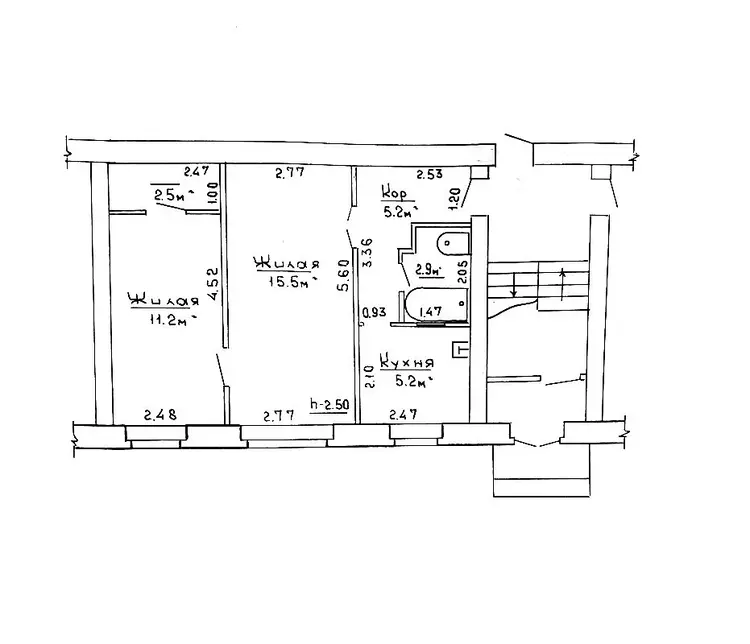
О квартире

Площадь
42.5 м2
общая
29.2 м2
жилая
5.2 м2
кухня
Санузел
совмещенный

О доме

Этаж
1 из 2
Материал стен
Кирпичный
Год постройки
1964

Описание

Продается отличная 2-комнатная квартира, в уникальном живописном историческом месте , в д.Бакуны. Удаленность от Гродно 15 км. Дом 1964 года (кирпич ), 1 этаж из 2. Прекрасное местоположение дома, близость леса подчеркивают уникальность этого места. Хорошее транспортное сообщение. Маршрутки ходят регулярно , недалеко от дома железнодорожная станция. Уютный двор, аккуратный чистый подъезд, спокойные соседи сделают ваше проживание комфортным. Рядом с домом есть возможность высадить пару грядок и заняться огородом. Имеется сарай . Параметры квартиры: общая площадь- 42,5 кв м жилая площадь- 29,2 кв м, кухня- 5,2 кв м. Совместный санузел . На кухне газовая колонка. Идеально подойдет всем, кто ценит природу, хорошее расположение дома , удобную планировку и близость к городу и возможность сделать ремонт под себя. Более подробно- по телефону. Звоните! А лучше- приезжайте! Оперативный показ и юридическое сопровождение сделки гарантируем.
СветланаАгент
5 лет на сайте
Условия сделки:Чистая продажа
Показать почту
Пожаловаться на объявление
Агентство недвижимости
Юриэлт, филиал г. Гродно

Местоположение

Гродненская область, д. Бакуны, ,
Опубликовано: 25.09.2025

Возможно, вам будет интересно