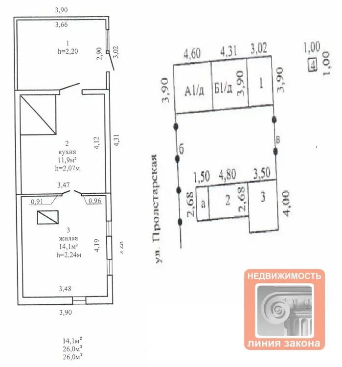
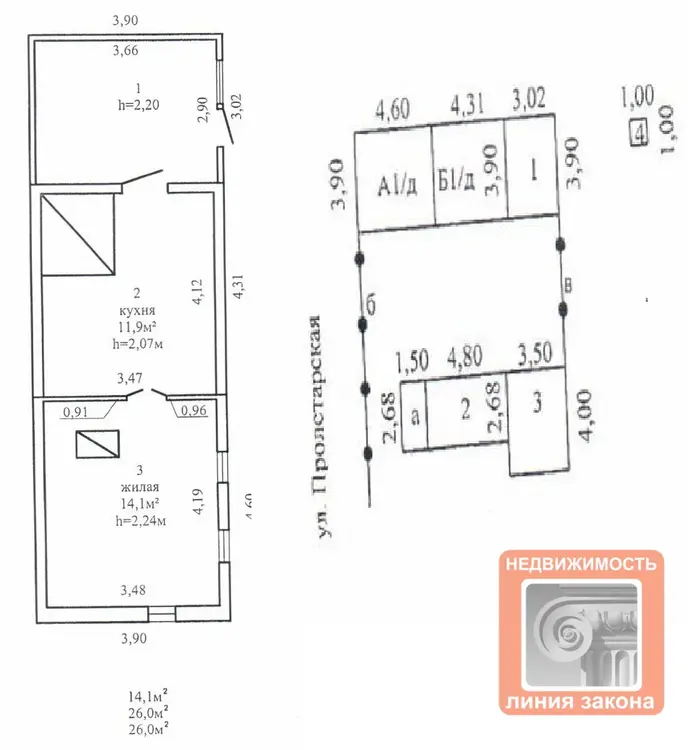
О доме
Площадь общая
26 м2
Площадь дома
26 м2
Участок
10 соток
В продаже
Целый дом
Год постройки
1943
Описание
Евгений Васильевич — Агент
9 лет на сайте
Показать почту
Пожаловаться на объявление
Агентство недвижимости
Недвижимость линия закона
УНП: 490680213 Лицензия: от 04.04.2008
Договор №: 07.08.2025 №332/1



