Объект в архиве
К результатам поиска

Продажа торговой точки на ул. Лазурная, д. 9 в Колядичах, 1200000USD, код 998280

1228.1 м2 1 этаж из 1
Объект в архиве
Уважаемые пользователи, данное объявление больше не актуально. Поэтому мы убрали все контакты продавца.
Продолжить поиск
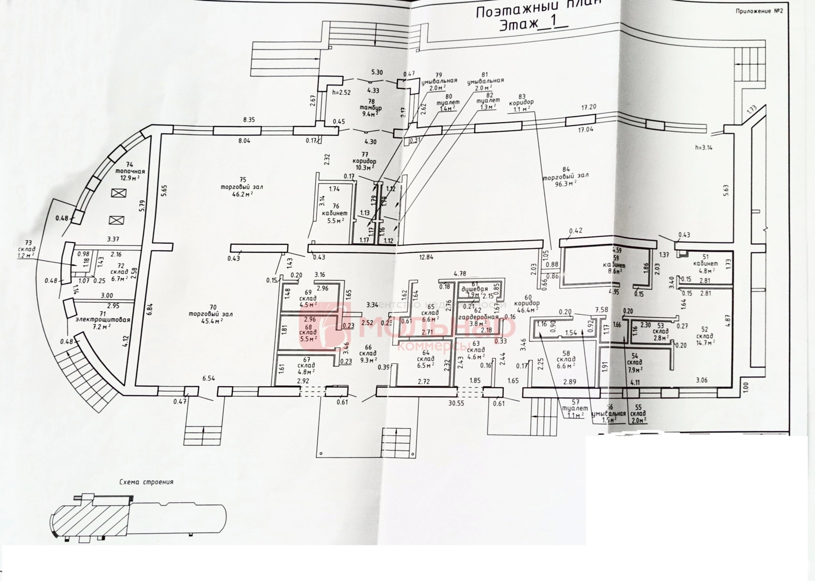
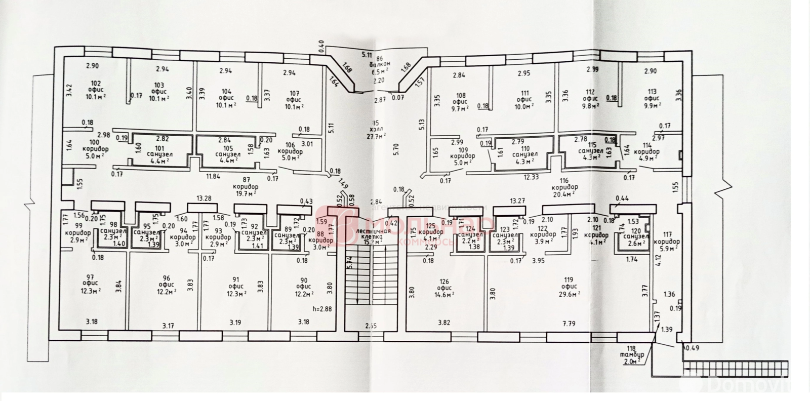
Торговый объект
Город Колядичи
Адрес ул. Лазурная, д. 9
Площадь 1228.1 м2
Этаж 1
Удобства
Отдельный вход

Описание

Продается уникальный многофункциональный комплекс, расположенный в стратегически выгодном месте на Минской кольцевой автодороге (МКАД). Комплекс идеально подходит для бизнеса, включая торговлю, офисные помещения, склады и развлекательные зоны.

 

Основные характеристики:

 

1. Расположение:

   – Удобный доступ с МКАД и близость к основным транспортным артериям.

   – Высокая авто трафик и видимость, что обеспечивает приток клиентов и партнеров.

 

2. Площадь:

   – Общая площадь комплекса составляет 1228.1 квадратных метров.

   – Возможность гибкой планировки помещений в зависимости от потребностей арендаторов.

 

3. Инфраструктура:

   – Современные инженерные системы: отопление, вентиляция, кондиционирование.

   – Парковка.

   – Благоустроенная, огороженная территория.

 

4. Функциональные зоны:

   – Торговые площади.

   – Офисные помещения с возможностью аренды.

   – Развлекательные и досуговые зоны, включая кафе и рестораны.

 

5. Потенциал для бизнеса:

   – Высокий потенциал для аренды различных видов бизнеса.

   – Возможность реализации новых проектов и концепций.

 

Преимущества покупки:

 

• Инвестиционная привлекательность: стабильный доход от аренды.

• Стратегическое месторасположение.

• Потенциал для дальнейшего развития и расширения бизнеса.

 

Не упустите возможность стать владельцем многофункционального комплекса на МКАД и развивать свой бизнес в одном из самых перспективных регионов!

Стоимость-1200 000 долл.

Код объекта: 998280 Договор с собственником: 416/1 Опубликовано: 27.11.2025 Обновлено: 27.11.2025
0 / 0 / 0
Динамика цен за кв. метрДинамика цен
Похожие объекты
Адрес
Комнат
Площадь
Этаж
Цена за м2
Цена
1453 м2
1 из 1
4 675 р. за м2
+
Фильтр сохранен