Подать БЕСПЛАТНО

Купить 1-комнатную квартиру в Копище, ул. Пилотная, д. 30

Минская область, д. Копище, ул. Пилотная, 30
Показать на карте
302 061 р.
Цена за м2: 7 025 р.
Код объекта: 1224210
1 комната
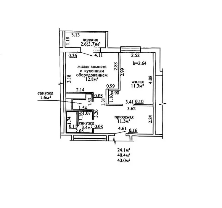
43 м2
3 этаж из 8
Обновлено: 24.01.2026
302 061 р.
Цена за м2: 7 025 р.
Предложить свою цену

О квартире

Площадь
43 м2
общая
24.1 м2
жилая
Отдельных комнат
1 комната
Санузел
раздельный
Балкон
Лоджия
Тип ремонта
Хороший

О доме

Этаж
3 из 8
Материал стен
Панельный
Год постройки
2025

Описание

Квартира с ремонтом в Новой Боровой

Дом 2025 г.п.

Квартира двухкомнатная, планировка согласована.

Дом комфорт-класса с повышенной тепло и звукоизоляцией. Малоэтажная застройка. Закрытый двор. Рядом с домом высажен парк. Открытие парка в первом квартале 2026 года.

В квартире почти завершен ремонт. Полы – водостойкий ламинат, стены - выровнены и оклеены (обои Германия), межкомнатные двери – Эмаль, входная дверь – «Медведев и К». В ванной современная плитка, встроенный полотенцесушитель, пол с подогревом. На лоджию выведен теплый пол.

Просторная кухня-гостиная с выходом на лоджию и отдельная спальня с местом для гардеробной. Раздельный санузел.

Потолки в квартире 2,64. Общая площадь по СНБ – 43 кв.м.

В подъезде оборудованы колясочная и лапомойка. Безбарьерная среда. Бесшумный грузопассажирский лифт Kleemann (Греция). Велобокс. Во дворе отличная детская площадка без доступа посторонних. Зона барбекю и беседка. Вся придомовая территория и подъезд оборудованы видеонаблюдением. Школа и детский сад в радиусе 300 м, магазины, кафе, фитнес клуб.

Рядом лесопарковая зона. Удобный выезд на МКАД. До станции метро 10 мин на автобусе.

Свежая современная квартира для себя или хорошая инвестиция.

Чистая продажа. Ключи в день сделки!

Общая площадь указана по СНБ.

Лицензия: №02240/362 МЮ РБ, 31.07.2018

ТатьянаАгент
7 лет на сайте
Условия сделки:продажа
Показать почту
Пожаловаться на объявление
Агентство недвижимости
Фаттория Плюс

Местоположение

Минская область, д. Копище, ул. Пилотная, 30
Опубликовано: 24.01.2026

Возможно, вам будет интересно

Похожие объекты

На этой улицеВ этом доме
327 468 р.
Цена за м2: 8 491 р.
д. Копище, ул. Пилотная
1-комн. кв
38.2
14
9.4 м2
8 этаж из 10
481 322 р.
Цена за м2: 4 870 р.
д. Копище, ул. Пилотная
3-комн. кв
98.8
59.5
11.3 м2
6 этаж из 9
521 973 р.
Цена за м2: 7 715 р.
д. Копище, ул. Пилотная
3-комн. кв
64
35
10 м2
4 этаж из 9
392 397 р.
Цена за м2: 8 867 р.
д. Копище, ул. Пилотная
1-комн. кв
43.9
36.1
1 м2
6 этаж из 6
302 058 р.
Цена за м2: 7 025 р.
д. Копище, ул. Пилотная
2-комн. кв
43
24.1
м2
3 этаж из 8