Выберите валюту для сайта:
BYN
Подать БЕСПЛАТНО

Купить складское помещение на ул. Привокзальная в Красном

773.1 м2
113 630 р.
Склад
Город Красное
Адрес ул. Привокзальная
Площадь 773.1 м2

Описание

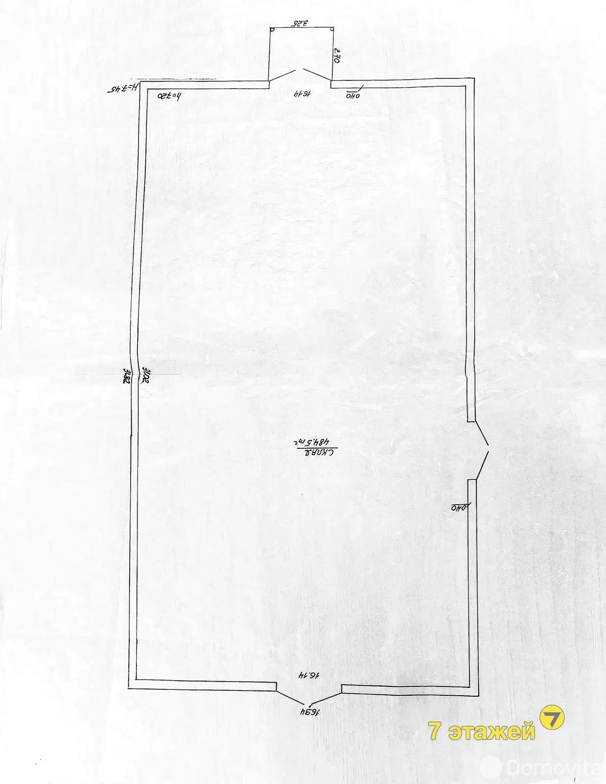
Купить СКЛАД ВТОРСЫРЬЯ и СКЛАД - АНГАР в д. Красное, Молодечненское направление, 42 км от МКАД, на ЖД СТАНЦИИ УША. ИДЕАЛЬНАЯ локация для вашего бизнеса! Два склада находятся на 41,83 сотках земли на праве постоянного пользования. Мощность 220 В и 380 В доступно. ЗАБОР ЭКРАН можно установить! Фурам к участку можно подъехать без проблем! 1. Одноэтажный кирпичный СКЛАД ВТОРСЫРЬЯ общей площадью 484,5 м2. Высота потолков: 7,20 м. Фундамент: бетонный. Пол покрытие: бетон. Стены: кирпич. Крыша: шиферная. Вентиляция: естественная. Наружная проводка. Металлические ворота. 2. СКЛАД - АНГАР площадью 288,6 м2. Высота потолков: 4,30 м. Фундамент: бетонный. Пол покрытие: бетон. Стены (конструкция): металлическая арочная. Крыша: профнастил. Назначение на два помещения: здание специализированное складов, торговых баз, баз материально-технического снабжения, хранилищ. Площадь земельного участка составляет 42 сотки в ПРАВЕ ПОСТОЯННОГО ПОЛЬЗОВАНИЯ. Целевое назначение земельного участка: Для содержания и обслуживания выкупленного склада вторсырья и склада-ангара на железной станции Уша. Рассматриваем и в РАССРОЧКУ! Отопление отсутствует. В цену включен НДС. Продает юр лицо. Использовалось под обработку древесины открытая площадка. Склад расположен вдоль железной дороги. Сопровождение и чистоту сделки гарантруем! Звоните!
Код объекта: 995197 Договор с собственником: 1455/3 от 01.12.2025 Опубликовано: 05.12.2025 Обновлено: 13.01.2026
0 / 0 / 1
Динамика цен за кв. метрДинамика цен

Вы просматривали

Склад, 773.1 м2
Красное, ул. Привокзальная
113 630 р.
147 р. за м2
Агент
Пожалуйста, скажите, что нашли этот объект на Domovita.by
+
Фильтр сохранен