Подать БЕСПЛАТНО

Продажа 1-этажного коттеджа в Сутоках, Минская область ул. Партизанская, 289000USD, код 646805

Минская область, д. Сутоки, ул. Партизанская
Показать на карте
Логойское направление
39 км от МКАД
721 029 р.
Код объекта: 646805
133.1 м2
25 соток
Обновлено: 13.03.2025
721 029 р.
Предложить свою цену

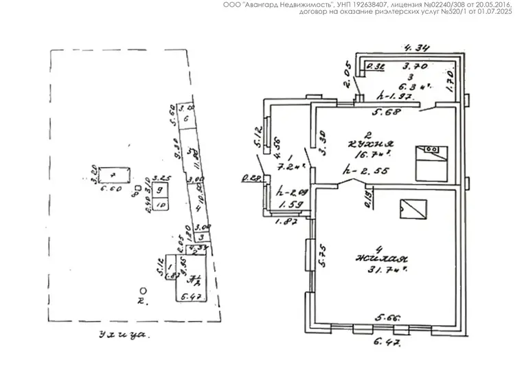
О доме

Площадь общая
133.1 м2
Площадь дома
133.1 м2
Участок
25 соток
В продаже
Целый дом
Готовность дома, %
100
Год постройки
2024
Материал стен
Блоки

Коммуникации

Водоснабжение: Колодец
Электричество: Есть
Канализация: Есть

Описание

Продается дом в деревне Сутоки

Современный одноэтажный дом 133,1 м2 на участке 25 соток, полностью готов к проживанию.

Построен в 2024 году, стены блочные, крыша черепица. В доме 4 комнаты, просторная кухня-гостиная 43,3 м2, жилая площадь 64 м2. Отопление электрическое, вода из скважины, местная канализация. Газопровод подведен, установлено все необходимое оборудование – требуется только подключение.

Качественная и современная отделка с использованием натуральных и долговечных материалов. В интерьере преобладают теплые оттенки, деревянные элементы и продуманное освещение, создающее уютную атмосферу. Просторная кухня-гостиная оснащена современной техникой, стильной мебелью и полностью готова к использованию.

На участке расположен гостевой дом с баней, включающий просторную гостиную и кухонную зону, с отдельной системой канализации. Также имеется бассейн, закрытая территория, парковка на несколько автомобилей.

Дом находится в экологически чистом районе, в окружении живописного леса. Тишина, свежий воздух и уединение делают это место идеальным для жизни и отдыха. Всего в нескольких минутах ходьбы протекает река, где можно наслаждаться прогулками, рыбалкой или купанием в теплое время года.

Отличный вариант для комфортного загородного проживания.

Подробности по телефону.

 

Поможем продать Вашу недвижимость.

 

Договор № 233/1 от 12.03.2025

ООО Агентство недвижимости «Метриум»

УНП 193581536

Лицензия № 02240/425, выдана Министерством Юстиции РБ 27.08.2021

Агентство недвижимости МетриумАгент
4 года на сайте
Показать почту
Пожаловаться на объявление
Агентство недвижимости
«Метриум»

Местоположение

Минская область, д. Сутоки, ул. Партизанская
Опубликовано: 13.03.2025

Похожие объекты

На этой улице
44 883 р.
д. Сутоки, ул. Партизанская
48.4
31.7
16.7 м2
45 соток