Подать БЕСПЛАТНО

ОБЪЕКТ В АРХИВЕ

Продажа 1-комнатной квартиры в Дитве, ул. Ленинская

Гродненская область, аг. Дитва, ул. Ленинская
Показать на карте
34 441 р.
Цена за м2: 865 р.
Код объекта: 1209725
1 комната
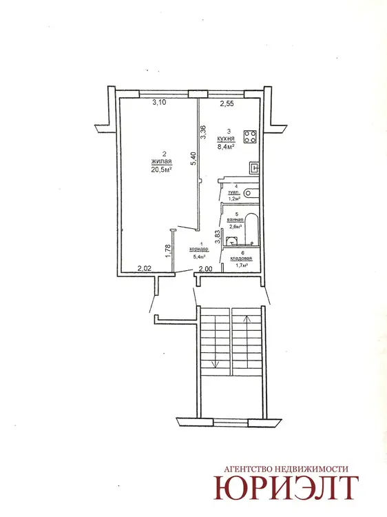
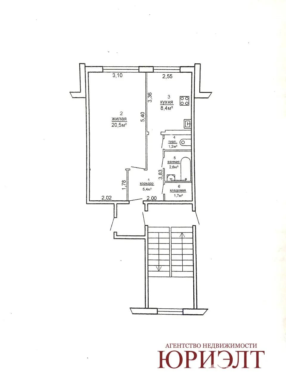
39.8 м2
2 этаж из 2
Обновлено: 12.11.2025
34 441 р.
Цена за м2: 865 р.
Предложить свою цену

О квартире

Площадь
39.8 м2
общая
20.5 м2
жилая
8.4 м2
кухня
Отдельных комнат
1 комната
Санузел
раздельный
Тип ремонта
Без отделки

О доме

Этаж
2 из 2
Материал стен
Панельный
Год постройки
1981

Описание

1 -комнатная квартира без ремонта, с разумным торгом. Панельный дом 1981 год постройки. Квартира находится на 2м этаже двухэтажного дома. «Улучшенный проект», большая площадь квартиры: 39,8 м2 , кухня 8,4 м2., уютная жилая комната 20,5м2. Раздельный с/у сэкономит время при утренних сборах. Прихожая оборудована кладовой, что позволяет разместить одежду и обувь, не загромождая коридор. Установлены стеклопакеты, которые сохранят тепло в квартире. Металлическая входная дверь. Общий тамбур большой площади позволит поставить велосипед или коляску и даст дополнительную шумо- и теплоизоляцию. Ухоженный подъезд и приятные соседи. Очень хорошо развита социальная инфраструктура, здесь имеются Дитвянская средняя школа, детский центр развития ребенка, филиал музыкальной школы, филиал СДЮШОР № 3, 1 государственный и два частных магазина, баня, Дом культуры, библиотека, врачебная амбулатория, аптека, отделение почтовой связи, комплексный приёмный пункт, два общежития, гостиница, костёл и церковь. Поможем продать вашу квартиру для покупки этого варианта. Звоните!
КсенияАгент
2 года на сайте
Условия сделки:Чистая продажа
Показать почту
Пожаловаться на объявление
Агентство недвижимости
Юриэлт, филиал г. Лида

Местоположение

Гродненская область, аг. Дитва, ул. Ленинская
Опубликовано: 12.11.2025

Возможно, вам будет интересно