Выберите валюту для сайта:
BYN
Подать БЕСПЛАТНО

Снять складское помещение на д. 4/А в Гатово, код 963574

1050 м2 1 этаж из 1
17 784 р./мес.
Склад
Город Гатово
Адрес д. 4/А
Год постройки 1988 г.
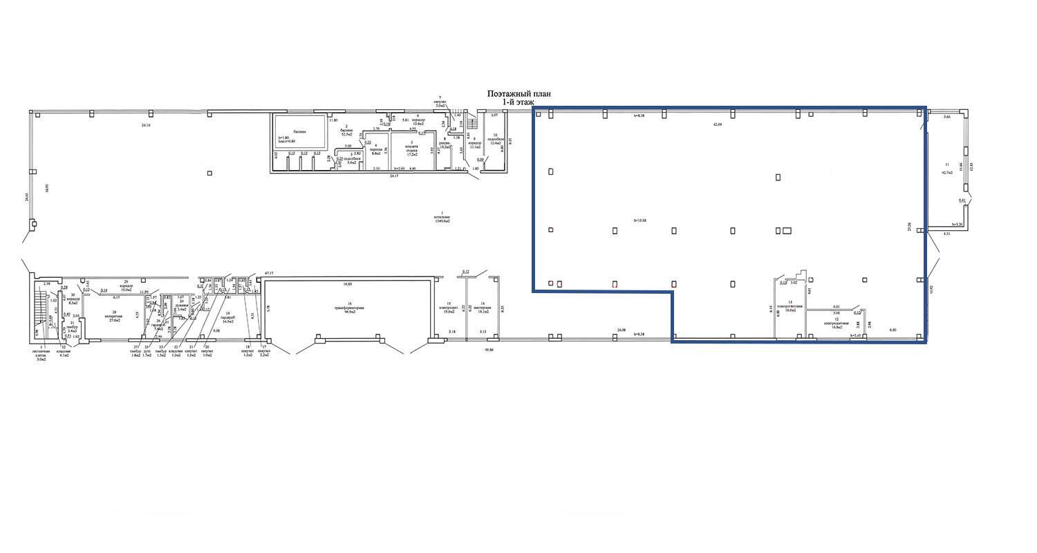
Площадь 1050 м2
Этаж 1

Описание

Аренда производственно - складских помещений
Адрес: Минсий р-н, Новодворский с/с, 4А, район аг. Гатово
Площадь: 1 050 м2
Стоимость: 5 €/м2, + НДС


Слады с высокими потолками в стадии реконструкции, с административными помещениями, отличными подъездными путями, площадью под организацию открытого хранения, огороженной территорией.

Возможен ремонт в счет арендной платы, при длительном сроке аренды.

Преимущества:
• огороженная территория 0,8869 га
• офисы и помещения для администрации
• высота потолков склада — 6 м.
• стены- панели
• пол – бетон
• стоянка
• круглосуточный доступ
• санузел
• канализация
• удобные подъездные пути

Арендатор не оплачивает услуги риэлтерской организации!

Ваш агент – Андрей Смолка

Больше предложений на САЙТЕ Silvan7800.by

Присоединяйтесь к нам в соцсетях:
Instagram
Facebook
VK
OK
YouTube

Договор № 133/3а от 20.11.2024 по 19.11.2026

ООО «Сильван-Инвест», УНП 192927433, лицензия №02240/383, Министерство юстиции РБ, 24.09.2019.

Код объекта: 963574 Договор с собственником: 133/3а от 2024-11-20 Опубликовано: 12.12.2024 Обновлено: 20.11.2025
0 / 2 / 50
Динамика цен за кв. метрДинамика цен

Вы просматривали

Склад, 1050 м2
Гатово, д. 4/А
17 784 р./мес.
17 р. за м2
Смолка Андрей
Пожалуйста, скажите, что нашли этот объект на Domovita.by
+
Фильтр сохранен