О квартире
Площадь
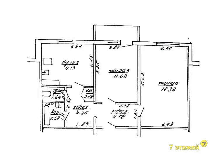
52.28 м2
общая
29.94 м2
жилая
9.13 м2
кухня
Отдельных комнат
2 комнаты
Санузел
раздельный
Балкон
Балкон застеклен
Тип ремонта
С отделкой
О доме
Этаж
1 из 4
Материал стен
Панельный
Год постройки
1989
Описание
Агент — Агент
9 лет на сайте
Условия сделки:Чистая продажа
Показать почту
Пожаловаться на объявление
Агентство недвижимости
7 этажей
УНП: 192361483 Лицензия: от 14.11.2014 № 225
Договор №: 327/3 от 13.02.2024

















