Подать БЕСПЛАТНО

Продать 1-этажный коттедж в Колодищах, Минская область , 493200USD, код 654063

Минская область, аг. Колодищи,
Показать на карте
Московское направление
8 км от МКАД
1 428 159 р.
Код объекта: 654063
164.8 м2
12 соток
Обновлено: 09.10.2025
1 428 159 р.
Предложить свою цену

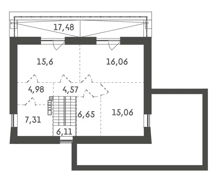
О доме

Площадь общая
164.8 м2
Площадь дома
164.8 м2
Участок
12 соток
В продаже
Целый дом
Год постройки
2027

Описание

Коттедж Тип 2 в жилом комплексе «Зеленая гавань» — это образец баланса между функциональностью, эстетикой и местом, где хочется жить.

Представьте дом, в котором архитектура подчёркивает связь с природой: большие витражные окна, потолки высотой до четырёх метров создают простор и наполняют помещения светом. В гостиной-кухне предусмотрены раздвижные стеклянные двери, ведущие на террасу, где можно встречать утро с чашкой кофе или устраивать семейные вечера на свежем воздухе. Вторая терраса на верхнем уровне открывает вид на внутренний двор и лесной пейзаж, позволяя наслаждаться визуальной лёгкостью пространства даже на высоте.

Технологическая часть дома тоже на высоте: каркас из монолитного железобетона, наружные стены из керамических пористых блоков толщиной 25 см, минеральная вата в качестве утеплителя и звукоизоляции. Кровля выполнена в односкатной конструкции из оцинкованной стали с полимерным покрытием. В жилом пространстве предусмотрены участки с тёплым полом (кухня-гостиная), санузлы, кладовая, котельная — всё удобно и продуманно.

Для автомобилей предусмотрен гараж на две машины, вход во двор и участок, ограждённый «еврозабором» высотой 1,6 метра, обеспечивающим приватность. Территория жилого комплекса под видеонаблюдением, охраняема, прилегающая инфраструктура ухожена.

Жилой комплекс «Зеленая гавань» расположен в 3,5 километрах от Минска, в окружении природного заказника Стиклево. Это сочетание загородной тишины, чистого воздуха, зелёных лесов и удобного пути до города. Всё сделано для того, чтобы вы могли наслаждаться жизнью здесь и сейчас, без компромиссов в качестве.

ОльгаАгент
2 года на сайте
Показать почту
Пожаловаться на объявление
Агентство недвижимости
ООО «ЭТАЖИ юнайтед»

Местоположение

Минская область, аг. Колодищи,
Опубликовано: 09.10.2025