О доме
Описание
Добро пожаловать в коттедж типа 4 в жилом комплексе «Зеленая гавань» — дом, где каждая деталь продумана для вашего комфорта и гармонии с природой.
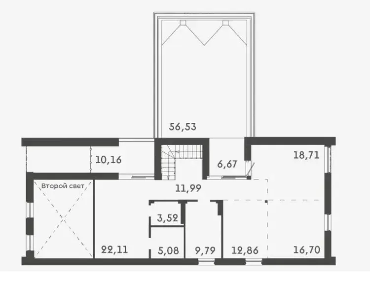
Этот коттедж выполнен с архитектурной выразительностью и функциональным подходом. В доме предусмотрена живая композиция пространства: на первом уровне — просторная гостиная-кухня с панорамным остеклением и «вторым светом», что визуально расширяет помещение и наполняет его светом. От гостиной открываются широкие выходы на одну из террас, где можно устроить зону отдыха или летнюю столовую на свежем воздухе.
На втором уровне располагаются три террасы различного масштаба, что создает множество точек для отдыха — с видом на внутренний двор и лесной массив. Террасы площадью примерно 56, 10 и 6 квадратных метров позволяют организовать как просторные смотровые площадки, так и уютные укромные уголки.
Инженерные решения дома отвечают высоким стандартам: отопление обеспечивается индивидуальным газовым котлом, на первом этаже дополнительно установлены внутрипольные конвекторы и теплые полы, на втором — радиаторы со встроенными терморегуляторами.
Стены возведены из керамзитобетонных блоков с наружным утеплением и дополнительной шумо-/теплоизоляцией. Каркас выполнен из монолитного железобетона, крыша — двускатная, с фальцевым покрытием из оцинкованной стали.
Планировочная концепция дома гибкая: на первом уровне запроектированы гардеробная, котельная, санузел и сауна, а основное пространство свободного назначения (гостиная, зона кухни, столовая) можно обустроить по собственному вкусу. На втором уровне пространство также отдано под свободное формирование, за исключением двух санузлов.
Также предусмотрен гараж на два машиноместа, который удобно интегрирован с функциональной частью дома. Участок ограждается «еврозабором» высотой 1,6 м, что создает приватность и порядок на территории.
Жилой комплекс «Зеленая гавань» расположен в окружении природного заказника Стиклево, всего в 3,5 км от Минска. Это сочетание удобства городской инфраструктуры и атмосферы загородного спокойствия.
Для тех, кто ценит внимание к деталям и готовые инженерные решения: коттедж тип 4 в «Зеленой гавани» — это дом, который готов служить комфортным и стильным семейным гнездом на долгие годы.









