Подать БЕСПЛАТНО

ОБЪЕКТ В АРХИВЕ

Продать 2-этажный коттедж в Колодищах, Минская область ул. Благодатная, д. 11, 120000USD, код 655081

Минская область, аг. Колодищи, ул. Благодатная, 11
Показать на карте
Московское направление
5 км от МКАД
344 412 р.
Код объекта: 655081
125.7 м2
15 соток
Обновлено: 19.11.2025
344 412 р.
Предложить свою цену

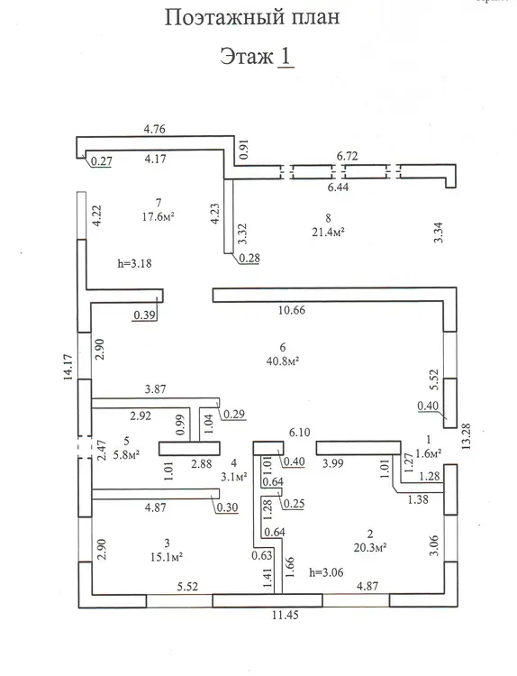
О доме

Площадь общая
125.7 м2
Площадь дома
125.7 м2
Участок
15 соток
В продаже
Целый дом
Год постройки
2019
Материал стен
Блоки

Описание

Продаётся двухэтажный дом (незавершенное законсервированное капитальное строение, 63% готовности) состоящий из первого и мансардного этажей, расположенный в агрогородке Колодищи. Дом стоит в тихом и уютном месте и расположен на участке 0,15 га. Земля находится в частной собственности. Участок правильной прямоугольной формы. Площадь первого этажа-125,7 кв. метров. На нём запроектированы: прихожая, две жилые комнаты, жилая комната с кухонным оборудованием, санузел, помещение гаража. На мансардном этаже – три жилые комнаты, холл и санузел. Материал стен дома- газосиликатный блок- толщиной 400 мм, пол - пустотелые железобетонные плиты, перекрытия-пустотелые железобетонные плиты, фундамент- железобетон, материал крыши –битумная черепица. Коммуникации: водопровод и газ проходят рядом с забором. Электричество-установлен столб с электрощитом. Вдоль забора проходит и телефонная линия. Хорошие подъездные пути-до дома проложен асфальт, агрогородок связан со столицей общественным транспортом. Расстояние до Минска-5 километров, до станции метро Уручье-11 километров.
ГеннадийАгент
9 лет на сайте
Показать почту
Пожаловаться на объявление
Агентство недвижимости
Юриэлт

Местоположение

Минская область, аг. Колодищи, ул. Благодатная, 11
Опубликовано: 19.11.2025

Похожие объекты

На этой улицеВ этом доме
344 412 р.
аг. Колодищи, ул. Благодатная
125
100
м2
15 соток
344 412 р.
аг. Колодищи, ул. Благодатная
125
100
м2
15 соток