О доме
Удобства
Коммуникации
Описание
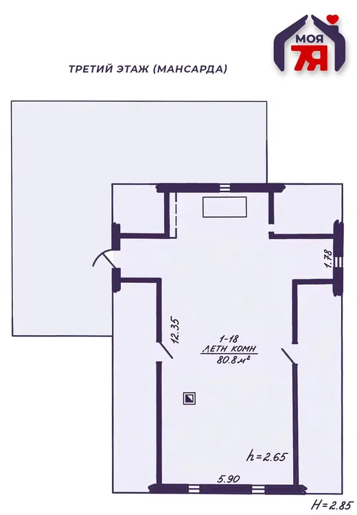
Колодищи: кирпичный 4-уровн. дом + баня с бассейном Кирпичный дом 1999 г. постройки + отдельный спа-комплекс (баня, бассейн) и гаражи, включая место под габаритный грузовой авто; коммуникации продуманы, подъезд удобный, до Минска 7 минут на машине, рядом заказник Глебкова. Адрес: аг. Колодищи, ул. Борисовская -Объект состоит из двух построек: основной четырёхуровневый кирпичный дом и отдельный спа-комплекс с баней, бассейном и дополнительными гаражами (в том числе под крупногабаритный грузовой автомобиль). -Дом построен в 1999 году и находится на высокой стадии готовности: выполнена черновая отделка, сделана лестница — по сути, осталось закрыть косметику под свой стиль, без капитальных переделок. -Планировка — редкая по функциональности и подходит тем, кому “просто дом” уже тесен по задачам. -1-й уровень: гараж, котельная и подсобные помещения. -2-й уровень: ещё один гараж, кухня, гостиная и комната — можно организовать кухню-гостиную как центр дома, а комнату — как кабинет или гостевую. -3-й уровень: холл, несколько жилых комнат, кладовые помещения; на каждом уровне предусмотрен санузел — это сильно упрощает жизнь большой семье и гостям. -4-й, верхний уровень: летняя комната с выходом на крышу — пространство под лаунж-зону, мастерскую, домашний спорт или “тихую” комнату, где никто не мешает. -По коммуникациям всё рационально: газ подведён к углу дома, вода — скважина, канализация местная. Отопление предусмотрено от твердотопливного или газового котла, разводка отопления уже выполнена — важный этап, который экономит время и бюджет. -Дом расположен в агрогородке Колодищи — это один из самых удобных вариантов “рядом с Минском”, где город остаётся доступным, но жить можно спокойнее и просторнее. -Подъездные пути удобные. До Минска — около 7 минут на машине, рядом остановки общественного транспорта и магазины: повседневные дела решаются без длинных маршрутов. -Примерно в 10 минутах ходьбы расположен биологический заказник Глебкова. Это даёт редкое сочетание: утром — прогулка по зелёным тропам, днём — дела в Минске, вечером — баня и бассейн у себя на участке. Этот объект выбирают люди, которым нужна не одна функция, а сразу несколько: жильё, мастерская/склад, нормальные гаражи, плюс приватная зона отдыха. Ищете выгодную недвижимость или хотите продать свою? Мы решим это для Вас с заботой и профессионализмом: - Купить квартиру или дом в Минске и области - Продать недвижимость по выгодной цене - Оформить ипотеку, семейный капитал или кредит на покупку недвижимости - Помочь с инвестициями в недвижимость - Подобрать дизайнерский ремонт или перепланировку - Выбрать лучший банк для выгодного кредита и лизинга * Напишите нам в удобный мессенджер - Viber, Telegram или WhatsApp, и мы ответим на все вопросы! «Моя 7Я» решит это, как для своей семьи: с любовью, заботой и желаемым результатом! Агентство недвижимости ООО «Центр международной недвижимости Моя 7Я» | УНП 193750826 | Лицензия: № 02240/484 выдана МЮ РБ 18.05.2024 г. | Страховое свидетельство БР 0005017






















