Подать БЕСПЛАТНО

Продать 1-этажный коттедж в Колодищах, Минская область ул. Энтузиастов, д. 194, 225000USD, код 653127

Минская область, аг. Колодищи, ул. Энтузиастов, 194
Показать на карте
Московское направление
8 км от МКАД
684 006 р.
Код объекта: 653127
335.8 м2
15 соток
Обновлено: 05.09.2025
684 006 р.
Предложить свою цену

О доме

Площадь общая
335.8 м2
Площадь дома
335.8 м2
Участок
15 соток
В продаже
Целый дом
Год постройки
2023
Материал стен
Блоки

Коммуникации

Водоснабжение: Колодец
Электричество: Есть
Канализация: Есть

Описание

Продаётся просторный дом, который вы наполните смыслом и своей атмосферой. Специальная цена, действует до Нового года.

Асфальтированный подъезд к дому.

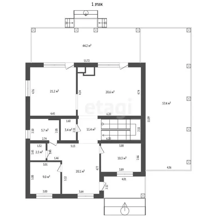
Общая площадь 335,8 м2, жилая 139 м2:

- фундамент свайно-ленточный;

- стены из блока г/с 400, плотностью 500 кг/м3, утеплены 5 см;

- окна (двухкамерные стеклопакеты);

- крыша (металлочерепица, утеплена 20 см);

1 этаж:

- 1 с/у;

- большая ванная комната;

- топочная;

- рабочий кабинет;

- гардеробная;

- большая гостиная с камином;

- просторная кухня 21,2 м2;

- терасса;

- навес;

- высота потолка 3,2 м.

2 этаж:

- пол (железобетонные перекрытия);

- спальня с санузлом;

- 3 раздельных комнаты и просторный холл;

- совмещённый санузел;

- высота потолка 3,1 м;

Участок: 15 соток (частная собственность).

Есть возможность провести центральные коммуникации.

Грамотно распланированное внутреннее пространство. Подходили к делу серьёзно, использовали только качественные материалы и строили для жизни.

Вокруг приличные соседи.

Подробные фото и видео по запросу

Для приобретения этого дома организуем продажу Вашей недвижимости.

ООО «ЭТАЖИ юнайтед»

УНП: 193673318

Договор 1821/1 от 02.09.2025

Лицензия на оказание риэлтерских услуг № 02240/460 МЮ РБ от 03.04.2023

МаксимАгент
2 года на сайте
Показать почту
Пожаловаться на объявление
Агентство недвижимости
ООО «ЭТАЖИ юнайтед»

Местоположение

Минская область, аг. Колодищи, ул. Энтузиастов, 194
Опубликовано: 05.09.2025

Похожие объекты

На этой улице
1 736 549 р.
аг. Колодищи, ул. Энтузиастов
338
243.8
78.2 м2
15.13 соток
439 297 р.
аг. Колодищи, ул. Энтузиастов
240
45
м2
15.18 соток
700 221 р.
аг. Колодищи, ул. Энтузиастов
299.6
136.1
23.4 м2
15.36 соток