Подать БЕСПЛАТНО

Продажа 2-комнатной квартиры в Колодищах, ул. Геофизика, д. 26/А

Минская область, аг. Колодищи, ул. Геофизика, 26/А
Показать на карте
269 300 р.
Цена за м2: 4 049 р.
Код объекта: 1200911
2 комнаты
64.3 м2
5 этаж из 5
Обновлено: 26.09.2025
269 300 р.
Цена за м2: 4 049 р.
Предложить свою цену

О квартире

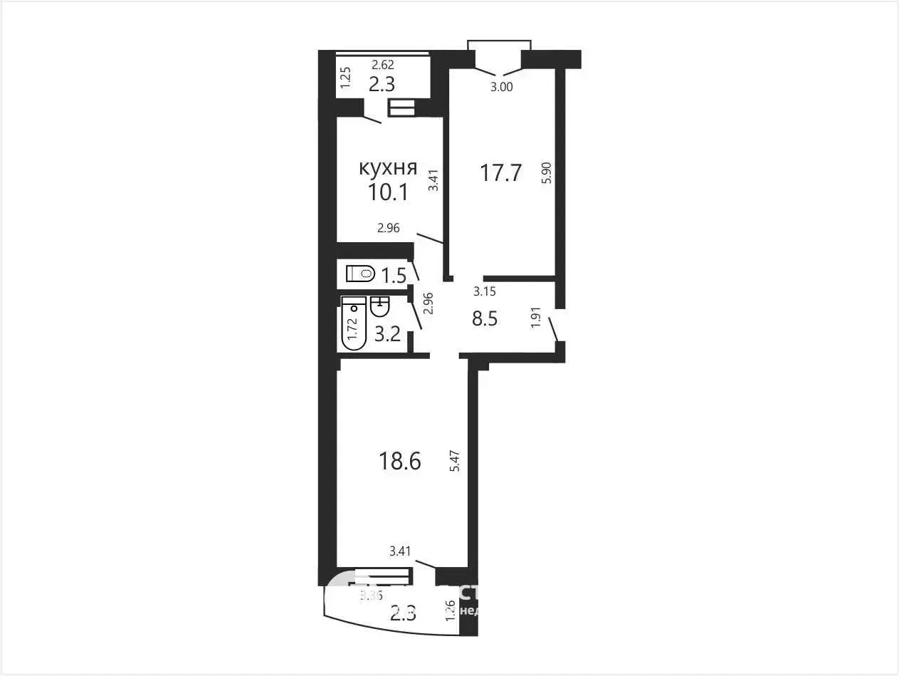
Площадь
64.3 м2
общая
36.3 м2
жилая
10.1 м2
кухня
Отдельных комнат
2 комнаты
Санузел
раздельный
Балкон
Лоджия
Тип ремонта
Без отделки

О доме

Этаж
5 из 5
Материал стен
Каркасно-блочный
Год постройки
2014

Описание

Продаётся уютная 2-комнатная квартира в новостройке!Колодищи, ул. Геофизика, 26АХарактеристики: Материал стен: каркасно-блочный Год постройки: 2014 Этаж: 5 из 5 Площадь по СНБ — 64.3 м² Общая — 59.7 м² Жилая — 36.3 м² Кухня — 10.1 м² 2 застеклённые лоджииПланировка — функциональная и удобная, идеально подойдёт как для семьи, так и для пары.Инфраструктура и окружение: Отличное транспортное сообщение: до метро "Уручье" — всего 12–15 минут на общественном транспорте, который ходит каждые 5–8 минут. В шаговой доступности: Евроопт, Белмаркет, Мила, Магия, торговый ряд, аптеки, банки, парикмахерские Рядом — поликлиникаКомфорт и природа:Чистая, зелёная зона — наслаждайтесь свежим воздухом каждый день Артезианская вода Велодорожки Достаточное количество парковочных мест Чистый и аккуратный подъездПрямая продажа.Купить или продать квартиру в Минске - легко и выгодно вместе с агентством недвижимости " Твоя столица"! Получите бесплатную консультацию покупке, продаже и обмену квартиры в Минске у опытных риэлтеров. Для Вас - актуальная база жилья с ценами, фото, планировками и услуги продажи квартир. Проконсультируем по алгоритму сделки, по необходимым документам!, Приходите на бесплатную консультацию риэлтера для покупки. Наш офис находится по адресу - Минск, Кирова, 8Смотреть подробнее Торг. Предложите свою цену. Последние поступления квартир. ТОП-20 ДЕШЕВЫХ КВАРТИРБАЗА ПОКУПАТЕЛЕЙ – узнайте, кто готов купить вашу квартиру прямо сейчас!КАЛЬКУЛЯТОР СТОИМОСТИ ЖИЛЬЯ – онлайн- расчет стоимости вашей квартиры!ПЕРЕЕЗЖАЕМ В НОВОСТРОЙКУ-  программа  обмена старого жилья на новое. 2 сделки в 1 день!ПАРТНЕР-КРЕДИТ  сопровождение кредитования для покупки и обмена «под ключ»ВАШ ВАРИАНТ- проверка квартир перед покупкой и оформление сделки, если вы нашли объект самостоятельно. ООО "Твоя столица", УНП 101136973, лицензия №02240/15 от 17.02.05г.
Агент
10 лет на сайте
Показать почту
Пожаловаться на объявление
Агентство недвижимости
ТВОЯ СТОЛИЦА АГЕНТСТВО НЕДВИЖИМОСТИ

Местоположение

Минская область, аг. Колодищи, ул. Геофизика, 26/А
Опубликовано: 26.09.2025

Возможно, вам будет интересно

Похожие объекты

На этой улице
159 264 р.
Цена за м2: 4 437 р.
аг. Колодищи, ул. Геофизика
Уручье
71 мин
38 мин
1-комн. кв
37.2
18.5
8.2 м2
4 этаж из 4