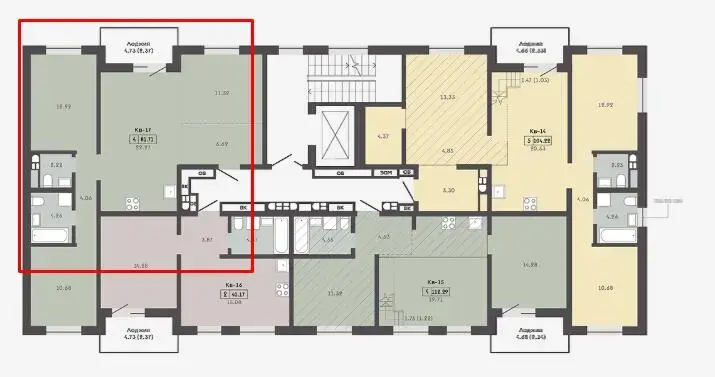
О квартире
О доме
Описание
Полный комплект для комфортной жизни в ситихаусе 6.12. Успей купить жилье комфорт-класса по привлекатльной цене от застройщика!
Особенности ситихауса 6.12
- Монолитный дом комфорт-класса
- 3 подъезда 6-5-6 этажей
- Квартиры от 2 до 5 комнат
- Высота потолков 3 м, в квартирах с мансардой переменная высота потолка – от 2,7 до 6,6 м
- Окна с подоконной частью высотой 500 мм, 1000 мм (в торце 1 секции), в санузлах – 800 мм, на антресолях 3 секции – 400 мм
- Комбинация из открытых и остекленных балконов.
Проходные подъезды будут размещать:
- Помещение для мытья лап домашних животных
- Помещение для хранения колясок на 1 этаже
- Видеодомофоны
- Удобная навигация, чат-доска
- Полки для book crossing
- Почтовые ящики со спам-отделением
- Безбарьерный вход.
Благоустройство зеленого коридора в соседстве с другими ситихаусами – это большая зона для игр. Сохраненные деревья выступят естественным шумовым барьером для жителей близлежащих домов.
Наполнение:
- Горки разной высоты в ростовой фигуре «Медведь», качели
- Навес в виде айсберга полигональной формы для игр
- Спортивный комплекс с веревочными конструкциями
- Зона тихого отдыха с деревянным настилом.
Внутреннее благоустройство двора будет создано из сохраненных лесных деревьев, к которым в дополнение будут высажены кустарники и многолетние травы. И будет включать:
- Площадка для детей от 1 до 7 лет с навесом для отдыха взрослых
- Несколько зон для тихого отдыха
- Соседский центр с павильоном и участком для совместного времяпрепровождения
- Крытый велобокс для хранения велосипедов
- Территория двора сохраняет концепцию закрытой территории без автомобилей и парковок -Ограждение еврозабором высотой 1,6 м. Видеонаблюдение дворовой территории и по периметру группы домов.
Почему стоит выбрать нас:
- Квартиры напрямую от застройщика, без переплат
- Поможем продать вашу текущую недвижимость для приобретения новостройки
- Полная юридическая прозрачность
ООО «ЭТАЖИ Юнайтед»
УНП: 193673318
Договор №1902/1 от 10.09.2025г.
Лицензия №02240/460 МЮ РБ от 03.04.2023
Звоните — подберем для вас оптимальный вариант по цене и условиям!
Актуальные цены и наличие — на 29.09.2025 г.
Ознакомиться с политикой обработки персональных данных ООО «ЭТАЖИ Юнайтед» можно здесь.
Совершая звонок, вы даете согласие на обработку персональных данных.



























