Подать БЕСПЛАТНО

Продажа 3-комнатной квартиры в Колодищах, ул. Берёзовая Аллея

Минская область, аг. Колодищи, ул. Берёзовая Аллея
Показать на карте
510 744 р.
Цена за м2: 5 244 р.
Код объекта: 1213713
3 комнаты
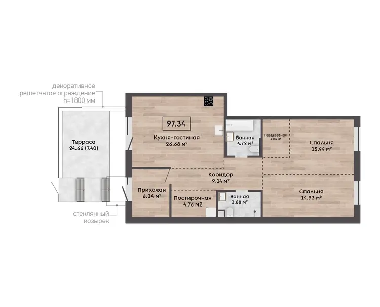
97.34 м2
1 этаж из 5
Обновлено: 05.12.2025
510 744 р.
Цена за м2: 5 244 р.
Предложить свою цену

О квартире

Площадь
97.34 м2
общая
57.05 м2
жилая
Балкон
Балкон
Тип ремонта
Без отделки

О доме

Этаж
1 из 5
Год постройки
2026

Описание

Просторная 3-комнатная квартира с уникальной планировкой на первом этаже, с отдельным входом через собственный участок. Высокие потолки 2,72 м и большое количество естественного света создают ощущение простора и уюта. Квартира идеально подойдёт для семьи или как инвестиция с возможностью обустройства личного сада/террасы.

Локация


- Дом расположен в центре квартала «Горный ручей».
- С двух сторон обрамлён зелёным коридором, обеспечивая жителям живописные виды из окон.
- В шаговой доступности: лесной пляж, кафе, магазины, рестораны, кофейни, паркинг, тренажёрный зал, аптека, детский сад (2025г.), школа (2028г.).

О доме


- Срок сдачи: 4 квартал 2026 года.
- Комфорт-класс, современная технология монолитного строительства с высоким уровнем шумоизоляции.
- Гладкость поверхности панелей - нет необходимости дополнительного оштукатуривания и выравнивания, идеальная геометрия стен.
- Открытые и остеклённые балконы.

Внутреннее благоустройство двора


Будет создано из сохранённых лесных деревьев, к которым в дополнение будут высажены кустарники и многолетние травы.


- Еврозабор высотой 1,6 м.
- Видеонаблюдение дворовой территории и по периметру группы домов.
- Зелёный коридор. 
- Спортивная площадка.
- Крытый велобокс для хранения велосипедов.
- Территория двора сохраняет концепцию закрытой территории без автомобилей и парковок.

Зелёный коридор и природные зоны


- Игровые комплексы с горками, качелями и верёвочными конструкциями.
- Зоны тихого отдыха с деревянными настилами.
- Пространство для активного и спокойного времяпрепровождения всей семьи.

Инфраструктура подъезда


- Безбарьерный вход.
- Помещение для мытья лап домашних животных.
- Комната для хранения колясок.
- Видеодомофон и продуманная навигация.
- Чат-доска для соседей, полки для book-crossing.
- Почтовые ящики со спам-отделением.

Квартира


- Без отделки.
- Высота потолков: 2,72 м.
- Оконные проёмы с низкой подоконной частью: 500 мм.
- Терраса. Участок приподнят на 0,5 метра над уровнем территории двора и обнесен металлическим ограждением.
- Обязательная покупка при приобретении квартиры - машино-место. Доступно в паркинге, в т.ч. места с ЭЗС. Не входит в стоимость квартиры.

Рассрочка от застройщика


- краткосрочная от 70% до 6 месяцев без увеличения стоимости;
- от 40% до конца строительства дома с увеличением стоимости;
- длительная от 40% до 60 месяцев с увеличением стоимости.


Квартира продаётся по цене застройщика без комиссии!

Звоните - лучшие предложения всегда уходят первыми!

Поможем продать Вашу недвижимость, чтобы купить эту!

Бесплатная консультация по кредитованию!

Наличие и стоимость актуальны на 04.12.2025 г.

ООО «ЭТАЖИ юнайтед»
УНП: 193673318
Договор N 1902/1 от 10.09.2025г. по 09.09.2026г.
Лицензия на оказание риэлтерских услуг №02240/460 МЮ РБ от 03.04.2023
Совершая звонок, вы даёте согласие на обработку персональных данных.
Ознакомиться с политикой обработки персональных данных ООО «ЭТАЖИ юнайтед» можно здесь.

ЯнаАгент
2 года на сайте
Условия сделки:продажа
Показать почту
Пожаловаться на объявление
Агентство недвижимости
ООО «ЭТАЖИ юнайтед»

Местоположение

Минская область, аг. Колодищи, ул. Берёзовая Аллея
Опубликовано: 05.12.2025

Возможно, вам будет интересно

Похожие объекты

На этой улице
343 181 р.
Цена за м2: 5 319 р.
аг. Колодищи, ул. Берёзовая Аллея
2-комн. кв
66.32
66.32
м2
5 этаж из 6
436 362 р.
Цена за м2: 4 856 р.
аг. Колодищи, ул. Берёзовая Аллея
4-комн. кв
92.62
92.62
м2
1 этаж из 6
385 736 р.
Цена за м2: 5 513 р.
аг. Колодищи, ул. Берёзовая Аллея
2-комн. кв
71.85
71.85
м2
1 этаж из 6